Woning Jozef Israëlskade 21 Amsterdam

Jozef Israëlskade 21, 1072RV Amsterdam

Ontvang updates voor Cornelis Troostbuurt

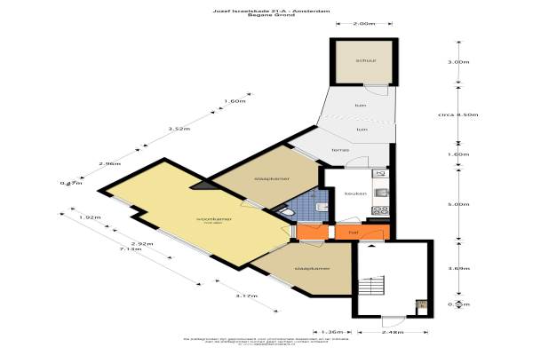
Het adres van deze woning uit 1923 is Jozef Israëlskade 21 te Amsterdam. Het pand heeft een oppervlakte van 61m² en heeft 3 kamers kamers waarvan 2 slaapkamers. De geschatte waarde van deze woning is € 390.000.

Bekijk alle woningen in Cornelis Troostbuurt

Gegevens van Benedenwoning (appartement)

Bouwjaar
1923
Geschatte waarde
€ 390.000
Oppervlakte
61 m2
Inhoud
211 m3
Aantal kamers
3 kamers
Slaapkamers
2
Badkamers
1 badkamer
Soort bouw
Bestaande bouw
Eigendomssituatie
Gemeentelijke erfpacht (einddatum erfpacht: 15-06-2054)
Ligging
Aan rustige weg en aan vaarwater
Tuin
Achtertuin
Achtertuin
23 m² (8,5m diep en 2m breed)

Voorzieningen in de buurt

Boodschappen0,1 km
Grote supermarkt0,2 km
Cafetaria0,1 km
Restaurant0,1 km
Huisarts0,4 km
Ziekenhuis2,4 km
Kinderdagverblijf0,1 km
BSO0,3 km
Alle voorzieningen in Cornelis Troostbuurt

Binnenkijken bij Jozef Israëlskade 21 te Amsterdam

Meer meldingen in deze omgeving

Nieuw bedrijf
Oktober 2025
Rustenburgerstraat 4434, 1072GZ Amsterdam

Nieuw bedrijf
Oktober 2025
Rustenburgerstraat 4434, 1072GZ Amsterdam

Binnenkijken bij
Donderdag 2-10-2025
Van Ostadestraat 513, 1072SN Amsterdam

Binnenkijken bij
Donderdag 2-10-2025
Dusartstraat 21H, 1072HM Amsterdam

Binnenkijken bij
Donderdag 2-10-2025
Cornelis Trooststraat 203, 1072JE Amsterdam

Binnenkijken bij
Donderdag 2-10-2025
Van Ostadestraat 62H, 1072TA Amsterdam

Binnenkijken bij
Donderdag 2-10-2025
Ceintuurbaan 2503, 1072GH Amsterdam

Binnenkijken bij
Donderdag 2-10-2025
Rustenburgerstraat 3941, 1072HH Amsterdam

Direct een e-mail ontvangen bij nieuwe meldingen in deze regio?

Meld je dan GRATIS aan voor de Oozo Alert service voor Cornelis Troostbuurt

Instellen

Meer nieuws in Cornelis Troostbuurt

Weten hoe eenvoudig het is om af te vallen? Zonder pillen en smeersels en zonder je in het zweet te werken!
Kijk op eenvoudig-afvallen.nl

© 2012 - 2025 OOZO.nl - info@oozo.nl - Gegevens verwijderen? | Disclaimer | Privacy statement