Woning Lutmastraat 13 Amsterdam

Lutmastraat 13, 1072JL Amsterdam

Ontvang updates voor Lizzy Ansinghbuurt

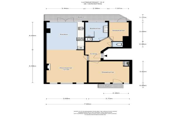
Het adres van deze woning uit 1922 is Lutmastraat 13 te Amsterdam. Het pand heeft een oppervlakte van 76m² en heeft 3 kamers kamers waarvan 2 slaapkamers. De geschatte waarde van deze woning is € 450.000.

Bekijk alle woningen in Lizzy Ansinghbuurt

Gegevens van Bovenwoning (appartement)

Bouwjaar
1922
Geschatte waarde
€ 450.000
Oppervlakte
76 m2
Inhoud
245 m3
Aantal kamers
3 kamers
Slaapkamers
2
Badkamers
1 badkamer en 1 apart toilet
Soort bouw
Bestaande bouw
Eigendomssituatie
Gemeentelijke erfpacht (einddatum erfpacht: 01-10-2041)
Ligging
Aan rustige weg en in woonwijk

Voorzieningen in de buurt

Boodschappen0,1 km
Grote supermarkt0,2 km
Cafetaria0,1 km
Restaurant0,1 km
Huisarts0,2 km
Ziekenhuis2,1 km
Kinderdagverblijf0,1 km
BSO0,2 km
Alle voorzieningen in Lizzy Ansinghbuurt

Binnenkijken bij Lutmastraat 13 te Amsterdam

Meer meldingen in deze omgeving

Nieuw bedrijf
December 2025
Van Ostadestraat 1562, 1072TG Amsterdam

Nieuw bedrijf
December 2025
Rustenburgerstraat 363H, 1072GT Amsterdam

Binnenkijken bij
Zaterdag 29-11-2025
Van Ostadestraat 1394, 1072SW Amsterdam

Nieuw bedrijf
November 2025
Rustenburgerstraat 386E, 1072HG Amsterdam

Nieuw bedrijf
November 2025
Lizzy Ansinghstraat 163, 1072RG Amsterdam

Binnenkijken bij
Dinsdag 25-11-2025
Van Ostadestraat 1463V, 1072TE Amsterdam

Binnenkijken bij
Vrijdag 21-11-2025
Ferdinand Bolstraat 1413, 1072LH Amsterdam

Nieuw bedrijf
November 2025
Lizzy Ansinghstraat 155, 1072RE Amsterdam

Direct een e-mail ontvangen bij nieuwe meldingen in deze regio?

Meld je dan GRATIS aan voor de Oozo Alert service voor Lizzy Ansinghbuurt

Instellen

Meer nieuws in Lizzy Ansinghbuurt

Weten hoe eenvoudig het is om af te vallen? Zonder pillen en smeersels en zonder je in het zweet te werken!
Kijk op eenvoudig-afvallen.nl

© 2012 - 2025 OOZO.nl - info@oozo.nl - Gegevens verwijderen? | Disclaimer | Privacy statement