Woning Willem Frederik Hermansstraat 47 Amsterdam

Willem Frederik Hermansstraat 47, 1011DG Amsterdam

Ontvang updates voor Oosterdokseiland

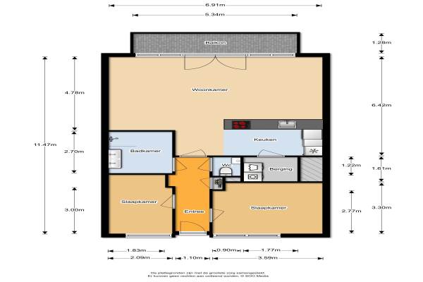
Het adres van deze woning uit 2012 is Willem Frederik Hermansstraat 47 te Amsterdam. Het pand heeft een oppervlakte van 78m² en heeft 3 kamers kamers waarvan 2 slaapkamers. De geschatte waarde van deze woning is € 425.000.

Bekijk alle woningen in Oosterdokseiland

Gegevens van Bovenwoning (appartement)

Bouwjaar
2012
Geschatte waarde
€ 425.000
Oppervlakte
78 m2
Inhoud
255 m3
Aantal kamers
3 kamers
Slaapkamers
2
Badkamers
1 badkamer
Soort bouw
Bestaande bouw
Eigendomssituatie
Gemeentelijk eigendom belast met erfpacht (einddatum erfpacht: 28-02-2060)
Ligging
Aan rustige weg en in centrum

Voorzieningen in de buurt

Boodschappen0,5 km
Grote supermarkt0,1 km
Cafetaria0,0 km
Restaurant0,1 km
Huisarts0,6 km
Ziekenhuis1,8 km
Kinderdagverblijf0,9 km
BSO0,8 km
Alle voorzieningen in Oosterdokseiland

Binnenkijken bij Willem Frederik Hermansstraat 47 te Amsterdam

Meer meldingen in deze omgeving

112 melding
Vrijdag 13-2-2026 om 10:58
Oosterdokskade, Amsterdam

Binnenkijken bij
Maandag 9-2-2026
Willem Frederik Hermansstraat 147, 1011DG Amsterdam

112 melding
Vrijdag 6-2-2026 om 09:14
Oosterdokskade, Amsterdam

112 melding
Woensdag 4-2-2026 om 23:45
Oosterdoksstraat, 1011DK Amsterdam

Binnenkijken bij
Zondag 1-2-2026
Willem Frederik Hermansstraat 95, 1011DG Amsterdam

Nieuw bedrijf
Januari 2026
Oosterdokskade 55, 1011DL Amsterdam

Faillissement
Vrijdag 16-1-2026
De Ruijterkade 112A, 1011AB Amsterdam

112 melding
Donderdag 1-1-2026 om 20:49
Oosterdoksstraat, 1011DK Amsterdam

Direct een e-mail ontvangen bij nieuwe meldingen in deze regio?

Meld je dan GRATIS aan voor de Oozo Alert service voor Oosterdokseiland

Instellen

Meer nieuws in Oosterdokseiland

Weten hoe eenvoudig het is om af te vallen? Zonder pillen en smeersels en zonder je in het zweet te werken!
Kijk op eenvoudig-afvallen.nl

© 2012 - 2026 OOZO.nl - info@oozo.nl - Gegevens verwijderen? | Disclaimer | Privacy statement