Woning Binnenkant 22 Amsterdam

Binnenkant 22, 1011BH Amsterdam

Ontvang updates voor Scheepvaarthuisbuurt

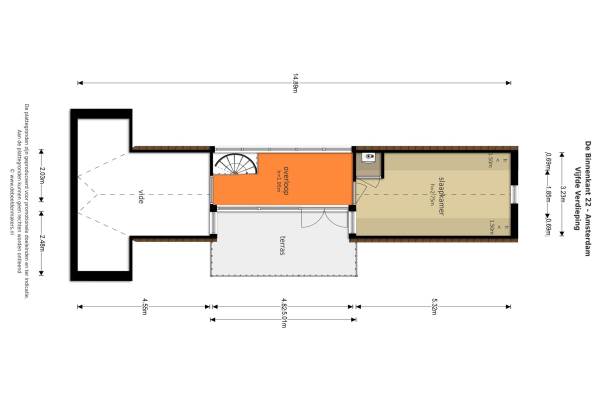
Het adres van deze woning is Binnenkant 22 te Amsterdam. Het pand heeft een oppervlakte van 190m² en heeft 4 kamers kamers waarvan 3 slaapkamers. De geschatte waarde van deze woning is € 1.395.000.

Bekijk alle woningen in Scheepvaarthuisbuurt

Gegevens van Bovenwoning

Bouwjaar
Voor 1906
Geschatte waarde
€ 1.395.000
Oppervlakte
190 m2
Inhoud
606 m3
Aantal kamers
4 kamers
Slaapkamers
3
Badkamers
1 badkamer en 1 apart toilet
Soort bouw
Bestaande bouw
Eigendomssituatie
Volle eigendom
Ligging
Aan water, aan rustige weg, in centrum, vrij uitzicht en beschutte ligging

Voorzieningen in de buurt

Boodschappen0,3 km
Grote supermarkt0,5 km
Cafetaria0,3 km
Restaurant0,3 km
Huisarts0,2 km
Ziekenhuis1,6 km
Kinderdagverblijf0,4 km
BSO0,4 km
Alle voorzieningen in Scheepvaarthuisbuurt

Binnenkijken bij Binnenkant 22 te Amsterdam

Meer meldingen in deze omgeving

Nieuw bedrijf
Januari 2026
Prins Hendrikkade 132F, 1011AR Amsterdam

Nieuw bedrijf
Januari 2026
Prins Hendrikkade 128H, 1011AP Amsterdam

Binnenkijken bij
Woensdag 24-12-2025
Prins Hendrikkade 156A, 1011AW Amsterdam

112 melding
Zondag 21-12-2025 om 12:24
Buiten Bantammerstraat, 1011AX Amsterdam

112 melding
Zondag 21-12-2025 om 12:23
Buiten Bantammerstraat, 1011AX Amsterdam

112 melding
Zondag 21-12-2025 om 12:11
Buiten Bantammerstraat, 1011AX Amsterdam

112 melding
Zaterdag 20-12-2025 om 00:02
Kalkmarkt, Amsterdam

Binnenkijken bij
Zondag 14-12-2025
Binnenkant 46D, 1011BP Amsterdam

Direct een e-mail ontvangen bij nieuwe meldingen in deze regio?

Meld je dan GRATIS aan voor de Oozo Alert service voor Scheepvaarthuisbuurt

Instellen

Meer nieuws in Scheepvaarthuisbuurt

Weten hoe eenvoudig het is om af te vallen? Zonder pillen en smeersels en zonder je in het zweet te werken!
Kijk op eenvoudig-afvallen.nl

© 2012 - 2026 OOZO.nl - info@oozo.nl - Gegevens verwijderen? | Disclaimer | Privacy statement