Woning Nieuwe Herengracht 87C Amsterdam

Nieuwe Herengracht 87C, 1011RW Amsterdam

Ontvang updates voor Valkenburg

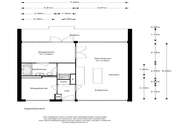
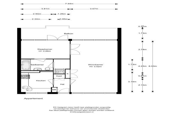
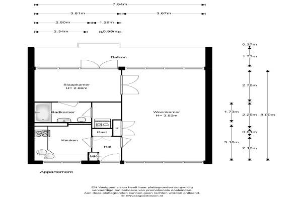
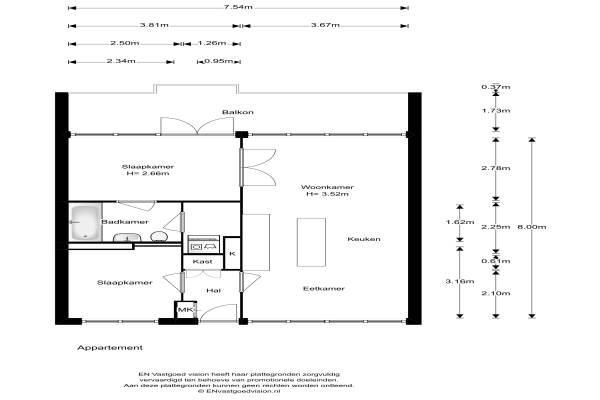
Het adres van deze woning uit 1961 is Nieuwe Herengracht 87C te Amsterdam. Het pand heeft een oppervlakte van 60m² en heeft 3 kamers kamers waarvan 2 slaapkamers. De geschatte waarde van deze woning is € 435.000.

Bekijk alle woningen in Valkenburg

Gegevens van Penthouse (appartement)

Bouwjaar
1961
Geschatte waarde
€ 435.000
Oppervlakte
60 m2
Inhoud
180 m3
Aantal kamers
3 kamers
Slaapkamers
2
Badkamers
1 badkamer
Soort bouw
Bestaande bouw
Eigendomssituatie
Gemeentelijke erfpacht (einddatum erfpacht: 31-05-2035)
Ligging
Aan rustige weg, in centrum en in woonwijk

Voorzieningen in de buurt

Boodschappen0,3 km
Grote supermarkt0,3 km
Cafetaria0,2 km
Restaurant0,1 km
Huisarts0,6 km
Ziekenhuis1,9 km
Kinderdagverblijf0,3 km
BSO0,3 km
Alle voorzieningen in Valkenburg

Binnenkijken bij Nieuwe Herengracht 87C te Amsterdam

Meer meldingen in deze omgeving

Binnenkijken bij
Woensdag 29-10-2025
Rapenburgerstraat 212, 1011MN Amsterdam

Binnenkijken bij
Woensdag 29-10-2025
Rapenburgerstraat 73E2, 1011VK Amsterdam

Nieuw bedrijf
Oktober 2025
Nieuwe Herengracht 123A, 1011SC Amsterdam

Nieuw bedrijf
Oktober 2025
Muiderstraat 1, 1011PZ Amsterdam

Nieuw bedrijf
Oktober 2025
Rapenburgerstraat 198, 1011ML Amsterdam

Nieuw bedrijf
Oktober 2025
Rapenburgerstraat 198, 1011ML Amsterdam

Nieuw bedrijf
Oktober 2025
Muiderstraat 1, 1011PZ Amsterdam

Faillissement
Donderdag 23-10-2025
Valkenburgerstraat 167A, 1011MJ Amsterdam

Direct een e-mail ontvangen bij nieuwe meldingen in deze regio?

Meld je dan GRATIS aan voor de Oozo Alert service voor Valkenburg

Instellen

Meer nieuws in Valkenburg

Weten hoe eenvoudig het is om af te vallen? Zonder pillen en smeersels en zonder je in het zweet te werken!
Kijk op eenvoudig-afvallen.nl

© 2012 - 2025 OOZO.nl - info@oozo.nl - Gegevens verwijderen? | Disclaimer | Privacy statement