Woning Zeeburgerkade 518 Amsterdam

Zeeburgerkade 518, 1019HR Amsterdam

Ontvang updates voor Architectenbuurt

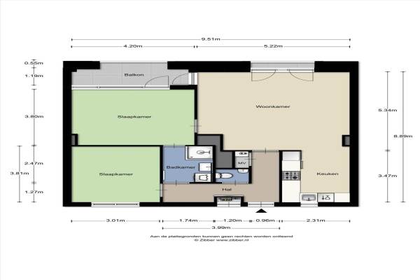
Het adres van deze woning uit 1905 is Zeeburgerkade 518 te Amsterdam. Het pand heeft een oppervlakte van 78m² en heeft 3 kamers kamers waarvan 2 slaapkamers. De geschatte waarde van deze woning is € 400.000.

Bekijk alle woningen in Architectenbuurt

Gegevens van Bovenwoning (appartement)

Bouwjaar
1905
Geschatte waarde
€ 400.000
Oppervlakte
78 m2
Inhoud
286 m3
Aantal kamers
3 kamers
Slaapkamers
2
Soort bouw
Bestaande bouw
Eigendomssituatie
Erfpacht
Ligging
Vrij uitzicht, aan rustige weg en aan water

Voorzieningen in de buurt

Boodschappen0,7 km
Grote supermarkt1,0 km
Cafetaria0,3 km
Restaurant0,3 km
Huisarts0,6 km
Ziekenhuis2,6 km
Kinderdagverblijf0,3 km
BSO0,3 km
Alle voorzieningen in Architectenbuurt

Binnenkijken bij Zeeburgerkade 518 te Amsterdam

Meer meldingen in deze omgeving

Binnenkijken bij
Donderdag 30-10-2025
Dick Greinerstraat 119, 1019CS Amsterdam

Nieuw bedrijf
Oktober 2025
Zeeburgerkade 310, 1019HL Amsterdam

Binnenkijken bij
Woensdag 29-10-2025
Zeeburgerkade 326, 1019HN Amsterdam

Binnenkijken bij
Woensdag 29-10-2025
Zeeburgerkade 700, 1019HS Amsterdam

Nieuw bedrijf
Oktober 2025
Hildo Kropplein 43, 1019EE Amsterdam

112 melding
Vrijdag 24-10-2025 om 08:57
J.M. van der Meylaan, Amsterdam

112 melding
Vrijdag 24-10-2025 om 08:57
J.M. van der Meylaan, Amsterdam

Binnenkijken bij
Zondag 19-10-2025
H.J.M. Walenkampstraat 79, 1019EA Amsterdam

Direct een e-mail ontvangen bij nieuwe meldingen in deze regio?

Meld je dan GRATIS aan voor de Oozo Alert service voor Architectenbuurt

Instellen

Meer nieuws in Architectenbuurt

Weten hoe eenvoudig het is om af te vallen? Zonder pillen en smeersels en zonder je in het zweet te werken!
Kijk op eenvoudig-afvallen.nl

© 2012 - 2025 OOZO.nl - info@oozo.nl - Gegevens verwijderen? | Disclaimer | Privacy statement