Woning Venetiëhof 133 Amsterdam

Venetiëhof 133, 1019NC Amsterdam

Ontvang updates voor KNSM-eiland

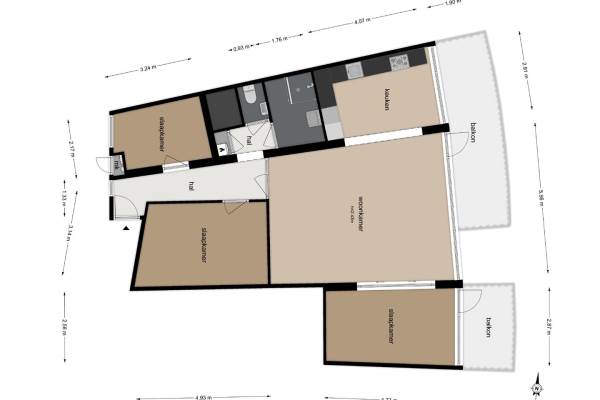
Het adres van deze woning uit 1994 is Venetiëhof 133 te Amsterdam. Het pand heeft een oppervlakte van 102m² en heeft 4 kamers kamers waarvan 3 slaapkamers. De geschatte waarde van deze woning is € 695.000.

Bekijk alle woningen in KNSM-eiland

Gegevens van Galerijflat (appartement)

Bouwjaar
1994
Geschatte waarde
€ 695.000
Oppervlakte
102 m2
Inhoud
309 m3
Aantal kamers
4 kamers
Slaapkamers
3
Badkamers
1 badkamer en 1 apart toilet
Soort bouw
Bestaande bouw
Eigendomssituatie
Gemeentelijk eigendom belast met erfpacht
Ligging
Aan rustige weg, aan vaarwater en vrij uitzicht

Voorzieningen in de buurt

Boodschappen0,3 km
Grote supermarkt0,9 km
Cafetaria0,2 km
Restaurant0,2 km
Huisarts0,6 km
Ziekenhuis3,7 km
Kinderdagverblijf0,6 km
BSO0,6 km
Alle voorzieningen in KNSM-eiland

Binnenkijken bij Venetiëhof 133 te Amsterdam

Meer meldingen in deze omgeving

Nieuw bedrijf
Oktober 2025
KNSM-laan 276, 1019LM Amsterdam

112 melding
Zondag 12-10-2025 om 22:50
Barcelonaplein, Amsterdam

112 melding
Zondag 12-10-2025 om 15:54
KNSM-laan, Amsterdam

112 melding
Zaterdag 11-10-2025 om 13:36
Levantkade, Amsterdam

112 melding
Zaterdag 11-10-2025 om 12:58
Levantkade, Amsterdam

Binnenkijken bij
Zaterdag 11-10-2025
Barcelonaplein 143, 1019LX Amsterdam

Nieuw bedrijf
Oktober 2025
Levantplein 1, 1019MA Amsterdam

Nieuw bedrijf
Oktober 2025
Surinamekade 5F, 1019BH Amsterdam

Direct een e-mail ontvangen bij nieuwe meldingen in deze regio?

Meld je dan GRATIS aan voor de Oozo Alert service voor KNSM-eiland

Instellen

Meer nieuws in KNSM-eiland

Weten hoe eenvoudig het is om af te vallen? Zonder pillen en smeersels en zonder je in het zweet te werken!
Kijk op eenvoudig-afvallen.nl

© 2012 - 2025 OOZO.nl - info@oozo.nl - Gegevens verwijderen? | Disclaimer | Privacy statement