Woning Venetiëhof 141 Amsterdam

Venetiëhof 141, 1019NC Amsterdam

Ontvang updates voor KNSM-eiland

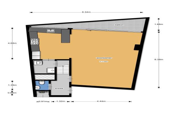
Het adres van deze woning is Venetiëhof 141 te Amsterdam. Het pand heeft een oppervlakte van 126m² en heeft 4 kamers kamers waarvan 3 slaapkamers. De geschatte waarde van deze woning is € 650.000.

Bekijk alle woningen in KNSM-eiland

Gegevens van Maisonnette (appartement)

Geschatte waarde
€ 650.000
Oppervlakte
126 m2
Inhoud
384 m3
Aantal kamers
4 kamers
Slaapkamers
3
Badkamers
3 badkamers en 2 aparte toiletten
Soort bouw
Bestaande bouw
Eigendomssituatie
Gemeentelijke erfpacht (einddatum erfpacht: 01-11-2043)
Ligging
Aan water, in woonwijk, vrij uitzicht, open ligging en aan vaarwater

Voorzieningen in de buurt

Boodschappen0,3 km
Grote supermarkt0,9 km
Cafetaria0,2 km
Restaurant0,2 km
Huisarts0,6 km
Ziekenhuis3,7 km
Kinderdagverblijf0,6 km
BSO0,6 km
Alle voorzieningen in KNSM-eiland

Binnenkijken bij Venetiëhof 141 te Amsterdam

Meer meldingen in deze omgeving

112 melding
Vrijdag 7-11-2025 om 13:45
Barcelonaplein, Amsterdam

112 melding
Dinsdag 4-11-2025 om 19:58
Levantkade, Amsterdam

112 melding
Vrijdag 31-10-2025 om 17:15
Venetiëhof, Amsterdam

112 melding
Vrijdag 31-10-2025 om 15:46
KNSM-laan, Amsterdam

112 melding
Vrijdag 31-10-2025 om 15:46
KNSM-laan, Amsterdam

Nieuw bedrijf
Oktober 2025
KNSM-laan 806, 1019LT Amsterdam

Binnenkijken bij
Woensdag 29-10-2025
KNSM-laan 763, 1019LJ Amsterdam

112 melding
Woensdag 29-10-2025 om 11:20
Barcelonaplein, Amsterdam

Direct een e-mail ontvangen bij nieuwe meldingen in deze regio?

Meld je dan GRATIS aan voor de Oozo Alert service voor KNSM-eiland

Instellen

Meer nieuws in KNSM-eiland

Weten hoe eenvoudig het is om af te vallen? Zonder pillen en smeersels en zonder je in het zweet te werken!
Kijk op eenvoudig-afvallen.nl

© 2012 - 2025 OOZO.nl - info@oozo.nl - Gegevens verwijderen? | Disclaimer | Privacy statement