Woning KNSM-laan 748 Amsterdam

KNSM-laan 748, 1019LS Amsterdam

Ontvang updates voor KNSM-eiland

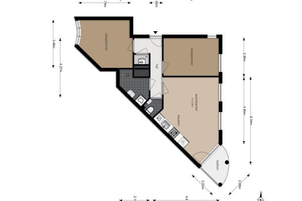
Het adres van deze woning uit 1993 is KNSM-laan 748 te Amsterdam. Het pand heeft 3 kamers kamers waarvan 2 slaapkamers. De geschatte waarde van deze woning is € 339.000.

Bekijk alle woningen in KNSM-eiland

Gegevens van Bovenwoning (appartement)

Bouwjaar
1993
Geschatte waarde
€ 339.000
Oppervlakte
0 m2
Inhoud
180 m3
Aantal kamers
3 kamers
Slaapkamers
2
Badkamers
1 badkamer en 1 apart toilet
Soort bouw
Bestaande bouw
Eigendomssituatie
Gemeentelijke erfpacht (einddatum erfpacht: 01-12-2042)
Ligging
Aan rustige weg, in woonwijk en vrij uitzicht

Voorzieningen in de buurt

Boodschappen0,3 km
Grote supermarkt0,9 km
Cafetaria0,2 km
Restaurant0,2 km
Huisarts0,6 km
Ziekenhuis3,7 km
Kinderdagverblijf0,6 km
BSO0,6 km
Alle voorzieningen in KNSM-eiland

Binnenkijken bij KNSM-laan 748 te Amsterdam

Meer meldingen in deze omgeving

Nieuw bedrijf
April 2026
KNSM-laan 369, 1019LG Amsterdam

Nieuw bedrijf
April 2026
Venetiëhof 77, 1019NB Amsterdam

Nieuw bedrijf
April 2026
Levantkade 33, 1019MC Amsterdam

Binnenkijken bij
Maandag 13-4-2026
KNSM-laan 461, 1019LG Amsterdam

112 melding
Maandag 13-4-2026 om 01:28
Piraeusplein, Amsterdam

112 melding
Zaterdag 11-4-2026 om 05:44
Venetiëstraat, Amsterdam

Binnenkijken bij
Vrijdag 10-4-2026
Venetiëhof 130, 1019NC Amsterdam

Binnenkijken bij
Vrijdag 10-4-2026
Venetiëstraat 72, 1019NJ Amsterdam

Direct een e-mail ontvangen bij nieuwe meldingen in deze regio?

Meld je dan GRATIS aan voor de Oozo Alert service voor KNSM-eiland

Instellen

Meer nieuws in KNSM-eiland

Weten hoe eenvoudig het is om af te vallen? Zonder pillen en smeersels en zonder je in het zweet te werken!
Kijk op eenvoudig-afvallen.nl

© 2012 - 2026 OOZO.nl - info@oozo.nl - Gegevens verwijderen? | Disclaimer | Privacy statement