Woning J.F. van Hengelstraat 60 Amsterdam

J.F. van Hengelstraat 60, 1019DC Amsterdam

Ontvang updates voor Sporenburg

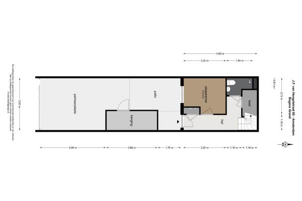
Het adres van deze woning uit 1997 is J.F. van Hengelstraat 60 te Amsterdam. Het pand heeft een oppervlakte van 103m² en heeft 4 kamers kamers waarvan 2 slaapkamers. De geschatte waarde van deze woning is € 750.000.

Bekijk alle woningen in Sporenburg

Gegevens van Eengezinswoning, tussenwoning

Bouwjaar
1997
Geschatte waarde
€ 750.000
Oppervlakte
103 m2
Inhoud
386 m3
Aantal kamers
4 kamers
Slaapkamers
2
Badkamers
2 badkamers
Soort bouw
Bestaande bouw
Eigendomssituatie
Gemeentelijk eigendom belast met erfpacht
Ligging
Aan rustige weg, in centrum en in woonwijk

Voorzieningen in de buurt

Boodschappen0,3 km
Grote supermarkt0,4 km
Cafetaria0,4 km
Restaurant0,4 km
Huisarts0,4 km
Ziekenhuis3,1 km
Kinderdagverblijf0,3 km
BSO0,3 km
Alle voorzieningen in Sporenburg

Binnenkijken bij J.F. van Hengelstraat 60 te Amsterdam

Meer meldingen in deze omgeving

112 melding
Zondag 26-4-2026 om 12:31
Ertskade, Amsterdam

Nieuw bedrijf
April 2026
Seinwachterstraat 36, 1019TE Amsterdam

112 melding
Woensdag 22-4-2026 om 22:56
Verbindingsdam, 1019BD Amsterdam

112 melding
Woensdag 22-4-2026 om 22:51
Verbindingsdam, 1019BD Amsterdam

112 melding
Woensdag 22-4-2026 om 22:44
Verbindingsdam, 1019BD Amsterdam

112 melding
Woensdag 22-4-2026 om 22:42
Verbindingsdam, 1019BD Amsterdam

112 melding
Woensdag 22-4-2026 om 22:39
Verbindingsdam, 1019BD Amsterdam

112 melding
Woensdag 22-4-2026 om 22:37
Verbindingsdam, 1019BD Amsterdam

Direct een e-mail ontvangen bij nieuwe meldingen in deze regio?

Meld je dan GRATIS aan voor de Oozo Alert service voor Sporenburg

Instellen

Meer nieuws in Sporenburg

Weten hoe eenvoudig het is om af te vallen? Zonder pillen en smeersels en zonder je in het zweet te werken!
Kijk op eenvoudig-afvallen.nl

© 2012 - 2026 OOZO.nl - info@oozo.nl - Gegevens verwijderen? | Disclaimer | Privacy statement