Woning Funenpark 203B Amsterdam

Funenpark 203B, 1018AK Amsterdam

Ontvang updates voor Het Funen

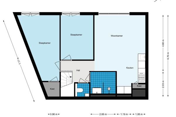
Het adres van deze woning uit 2002 is Funenpark 203B te Amsterdam. Het pand heeft een oppervlakte van 63m² en heeft 3 kamers kamers waarvan 2 slaapkamers. De geschatte waarde van deze woning is € 600.000.

Bekijk alle woningen in Het Funen

Gegevens van Bovenwoning (appartement)

Bouwjaar
2002
Geschatte waarde
€ 600.000
Oppervlakte
63 m2
Inhoud
189 m3
Aantal kamers
3 kamers
Slaapkamers
2
Badkamers
1 badkamer en 1 apart toilet
Soort bouw
Bestaande bouw
Eigendomssituatie
Volle eigendom
Ligging
Aan park, in woonwijk en vrij uitzicht

Voorzieningen in de buurt

Boodschappen0,3 km
Grote supermarkt0,4 km
Cafetaria0,4 km
Restaurant0,3 km
Huisarts0,5 km
Ziekenhuis1,9 km
Kinderdagverblijf0,4 km
BSO0,2 km
Alle voorzieningen in Het Funen

Binnenkijken bij Funenpark 203B te Amsterdam

Meer meldingen in deze omgeving

Nieuw bedrijf
December 2025
Funenpark 368, 1018AK Amsterdam

112 melding
Dinsdag 2-12-2025 om 16:40
Funenpark, 1018AK Amsterdam

Nieuw bedrijf
December 2025
Funenpark 83, 1018AK Amsterdam

112 melding
Vrijdag 28-11-2025 om 05:49
Funenpark, 1018AK Amsterdam

112 melding
Woensdag 26-11-2025 om 15:13
Funenpark, 1018AK Amsterdam

Nieuw bedrijf
November 2025
Funenpark 389, 1018AK Amsterdam

112 melding
Donderdag 13-11-2025 om 00:45
Funenpark, 1018AK Amsterdam

Nieuw bedrijf
November 2025
Zeeburgerpad 183, 1018AJ Amsterdam

Direct een e-mail ontvangen bij nieuwe meldingen in deze regio?

Meld je dan GRATIS aan voor de Oozo Alert service voor Het Funen

Instellen

Meer nieuws in Het Funen

Weten hoe eenvoudig het is om af te vallen? Zonder pillen en smeersels en zonder je in het zweet te werken!
Kijk op eenvoudig-afvallen.nl

© 2012 - 2025 OOZO.nl - info@oozo.nl - Gegevens verwijderen? | Disclaimer | Privacy statement