Woning Inzet 3 Amsterdam

Inzet 3, 1068RC Amsterdam

Ontvang updates voor Calandlaan/Lelylaan

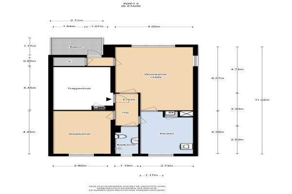
Het adres van deze woning is Inzet 3 te Amsterdam. Het pand heeft een oppervlakte van 60m² en heeft 2 kamers kamers waarvan 1 slaapkamers. De geschatte waarde van deze woning is € 175.000.

Bekijk alle woningen in Calandlaan/Lelylaan

Gegevens van Portiekflat (appartement)

Geschatte waarde
€ 175.000
Oppervlakte
60 m2
Inhoud
156 m3
Aantal kamers
2 kamers
Slaapkamers
1
Badkamers
1 apart toilet
Soort bouw
Bestaande bouw
Ligging
Aan rustige weg en in woonwijk

Voorzieningen in de buurt

Boodschappen0,4 km
Grote supermarkt0,5 km
Cafetaria0,4 km
Restaurant0,4 km
Huisarts0,7 km
Ziekenhuis2,6 km
Kinderdagverblijf0,4 km
BSO0,7 km
Alle voorzieningen in Calandlaan/Lelylaan

Binnenkijken bij Inzet 3 te Amsterdam

Meer meldingen in deze omgeving

112 melding
Maandag 13-4-2026 om 09:19
Verdraagzaam, 1068SB Amsterdam

112 melding
Zondag 12-4-2026 om 16:48
Hoekenespad, 1068HX Amsterdam

112 melding
Zondag 12-4-2026 om 12:37
Samenwerking, Amsterdam

Politienieuws
Zaterdag 11-4-2026
Vertrouwen, Amsterdam

112 melding
Vrijdag 10-4-2026 om 17:17
Eliza van Calcarstraat, Amsterdam

112 melding
Vrijdag 10-4-2026 om 10:43
Samenwerking, Amsterdam

Nieuw bedrijf
April 2026
Eliza van Calcarstraat 27, 1068RR Amsterdam

Binnenkijken bij
Woensdag 8-4-2026
Professor J.H. Gunningstraat 81, 1068MS Amsterdam

Direct een e-mail ontvangen bij nieuwe meldingen in deze regio?

Meld je dan GRATIS aan voor de Oozo Alert service voor Calandlaan/Lelylaan

Instellen

Meer nieuws in Calandlaan/Lelylaan

Weten hoe eenvoudig het is om af te vallen? Zonder pillen en smeersels en zonder je in het zweet te werken!
Kijk op eenvoudig-afvallen.nl

© 2012 - 2026 OOZO.nl - info@oozo.nl - Gegevens verwijderen? | Disclaimer | Privacy statement