Woning Ruimzicht 67 Amsterdam

Ruimzicht 67, 1068CN Amsterdam

Ontvang updates voor Meer en Oever

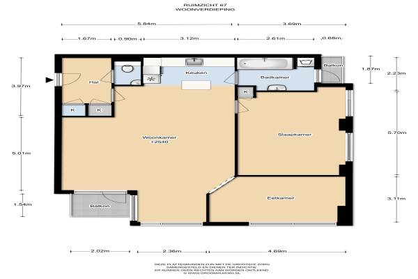
Het adres van deze woning uit 1970 is Ruimzicht 67 te Amsterdam. Het pand heeft een oppervlakte van 96m² en heeft 2 kamers kamers waarvan 1 slaapkamers. De geschatte waarde van deze woning is € 299.000.

Bekijk alle woningen in Meer en Oever

Gegevens van Portiekflat (appartement)

Bouwjaar
1970
Geschatte waarde
€ 299.000
Oppervlakte
96 m2
Inhoud
325 m3
Aantal kamers
2 kamers
Slaapkamers
1
Badkamers
1 badkamer en 1 apart toilet
Soort bouw
Bestaande bouw
Eigendomssituatie
Gemeentelijk eigendom belast met erfpacht (einddatum erfpacht: 15-08-2039)
Ligging
Aan park, in woonwijk en vrij uitzicht

Voorzieningen in de buurt

Boodschappen0,6 km
Grote supermarkt0,8 km
Cafetaria0,7 km
Restaurant0,3 km
Huisarts0,4 km
Ziekenhuis3,2 km
Kinderdagverblijf0,5 km
BSO0,5 km
Alle voorzieningen in Meer en Oever

Binnenkijken bij Ruimzicht 67 te Amsterdam

Meer meldingen in deze omgeving

Nieuw bedrijf
November 2025
President Allendelaan 319, 1068VM Amsterdam

Nieuw bedrijf
November 2025
President Allendelaan 519, 1068VN Amsterdam

Nieuw bedrijf
November 2025
Oeverpad 277, 1068PJ Amsterdam

Nieuw bedrijf
November 2025
Meer en Vaart 166, 1068ZZ Amsterdam

112 melding
Zaterdag 15-11-2025 om 20:04
Oeverpad, Amsterdam

Binnenkijken bij
Zaterdag 15-11-2025
Ruimzicht 90, 1068CP Amsterdam

Binnenkijken bij
Zaterdag 15-11-2025
Ruimzicht 324, 1068DA Amsterdam

Binnenkijken bij
Vrijdag 14-11-2025
Oeverpad 259, 1068PJ Amsterdam

Direct een e-mail ontvangen bij nieuwe meldingen in deze regio?

Meld je dan GRATIS aan voor de Oozo Alert service voor Meer en Oever

Instellen

Meer nieuws in Meer en Oever

Weten hoe eenvoudig het is om af te vallen? Zonder pillen en smeersels en zonder je in het zweet te werken!
Kijk op eenvoudig-afvallen.nl

© 2012 - 2025 OOZO.nl - info@oozo.nl - Gegevens verwijderen? | Disclaimer | Privacy statement