Woning Eerste Jacob van Campenstraat 50 Amsterdam

Eerste Jacob van Campenstraat 50, 1072BH Amsterdam

Ontvang updates voor Frans Halsbuurt

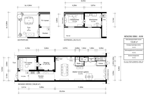
Het adres van deze woning uit 1879 is Eerste Jacob van Campenstraat 50 te Amsterdam. Het pand heeft een oppervlakte van 134m² en heeft 4 kamers kamers waarvan 2 slaapkamers. De geschatte waarde van deze woning is € 750.000.

Bekijk alle woningen in Frans Halsbuurt

Gegevens van Benedenwoning (appartement)

Bouwjaar
1879
Geschatte waarde
€ 750.000
Oppervlakte
134 m2
Inhoud
350 m3
Aantal kamers
4 kamers
Slaapkamers
2
Badkamers
1 badkamer en 1 apart toilet
Soort bouw
Bestaande bouw
Eigendomssituatie
Volle eigendom
Ligging
In woonwijk
Tuin
Achtertuin
Achtertuin
30 m² (5m diep en 6m breed)

Voorzieningen in de buurt

Boodschappen0,1 km
Grote supermarkt0,3 km
Cafetaria0,1 km
Restaurant0,0 km
Huisarts0,2 km
Ziekenhuis2,0 km
Kinderdagverblijf0,2 km
BSO0,5 km
Alle voorzieningen in Frans Halsbuurt

Binnenkijken bij Eerste Jacob van Campenstraat 50 te Amsterdam

Meer meldingen in deze omgeving

Binnenkijken bij
Dinsdag 10-3-2026
Gerard Doustraat 151, 1072VJ Amsterdam

Nieuw bedrijf
Maart 2026
Eerste Jacob van Campenstraat 52H, 1072BH Amsterdam

Nieuw bedrijf
Maart 2026
Saenredamstraat 59H, 1072CD Amsterdam

Binnenkijken bij
Maandag 9-3-2026
Daniël Stalpertstraat 562A, 1072XJ Amsterdam

Nieuw bedrijf
Maart 2026
Daniël Stalpertstraat 81, 1072XE Amsterdam

Binnenkijken bij
Zaterdag 7-3-2026
Saenredamstraat 33H, 1072CB Amsterdam

Binnenkijken bij
Zaterdag 7-3-2026
Eerste Jacob van Campenstraat 364, 1072BG Amsterdam

112 melding
Dinsdag 3-3-2026 om 20:09
Saenredamstraat, Amsterdam

Direct een e-mail ontvangen bij nieuwe meldingen in deze regio?

Meld je dan GRATIS aan voor de Oozo Alert service voor Frans Halsbuurt

Instellen

Meer nieuws in Frans Halsbuurt

Weten hoe eenvoudig het is om af te vallen? Zonder pillen en smeersels en zonder je in het zweet te werken!
Kijk op eenvoudig-afvallen.nl

© 2012 - 2026 OOZO.nl - info@oozo.nl - Gegevens verwijderen? | Disclaimer | Privacy statement