Woning Overtoom 440III Amsterdam

Overtoom 440III, 1054JV Amsterdam

Ontvang updates voor Cremerbuurt West

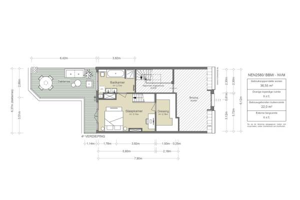
Het adres van deze woning uit 1907 is Overtoom 440III te Amsterdam. Het pand heeft een oppervlakte van 108m² en heeft 4 kamers kamers waarvan 3 slaapkamers. De geschatte waarde van deze woning is € 750.000.

Bekijk alle woningen in Cremerbuurt West

Gegevens van Bovenwoning (appartement)

Bouwjaar
1907
Geschatte waarde
€ 750.000
Oppervlakte
108 m2
Inhoud
350 m3
Aantal kamers
4 kamers
Slaapkamers
3
Badkamers
1 badkamer en 1 apart toilet
Soort bouw
Bestaande bouw
Eigendomssituatie
Erfpacht

Voorzieningen in de buurt

Boodschappen0,1 km
Grote supermarkt0,3 km
Cafetaria0,2 km
Restaurant0,1 km
Huisarts0,4 km
Ziekenhuis2,6 km
Kinderdagverblijf0,1 km
BSO0,4 km
Alle voorzieningen in Cremerbuurt West

Binnenkijken bij Overtoom 440III te Amsterdam

Meer meldingen in deze omgeving

Onroerend goed
Dinsdag 14-4-2026
Wilhelminastraat 105-H, 1054VZ Amsterdam

Binnenkijken bij
Dinsdag 14-4-2026
Kanaalstraat 2061, 1054XS Amsterdam

Nieuw bedrijf
April 2026
Pieter Langendijkstraat 12H, 1054ZA Amsterdam

Nieuw bedrijf
April 2026
Derde Kostverlorenkade 11, 1054TN Amsterdam

Nieuw bedrijf
April 2026
J.J. Cremerplein 133, 1054TE Amsterdam

Binnenkijken bij
Maandag 13-4-2026
Derde Kostverlorenkade 233, 1054TP Amsterdam

Binnenkijken bij
Vrijdag 10-4-2026
Overtoom 5504, 1054LM Amsterdam

Binnenkijken bij
Vrijdag 10-4-2026
J.J. Cremerplein 583, 1054TM Amsterdam

Direct een e-mail ontvangen bij nieuwe meldingen in deze regio?

Meld je dan GRATIS aan voor de Oozo Alert service voor Cremerbuurt West

Instellen

Meer nieuws in Cremerbuurt West

Weten hoe eenvoudig het is om af te vallen? Zonder pillen en smeersels en zonder je in het zweet te werken!
Kijk op eenvoudig-afvallen.nl

© 2012 - 2026 OOZO.nl - info@oozo.nl - Gegevens verwijderen? | Disclaimer | Privacy statement