Woning Kanaalstraat 1661 Amsterdam

Kanaalstraat 166-1, 1054XP Amsterdam

Ontvang updates voor Cremerbuurt West

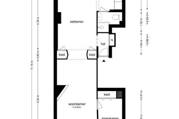
Het adres van deze woning is Kanaalstraat 1661 te Amsterdam. Het pand heeft een oppervlakte van 50m² en heeft 2 kamers kamers waarvan 1 slaapkamers. De geschatte waarde van deze woning is € 400.000.

Bekijk alle woningen in Cremerbuurt West

Gegevens van Tussenverdieping (appartement)

Geschatte waarde
€ 400.000
Oppervlakte
50 m2
Inhoud
166 m3
Aantal kamers
2 kamers
Slaapkamers
1
Badkamers
1 badkamer
Soort bouw
Bestaande bouw
Eigendomssituatie
Volle eigendom
Ligging
Aan rustige weg en in woonwijk

Voorzieningen in de buurt

Boodschappen0,1 km
Grote supermarkt0,3 km
Cafetaria0,2 km
Restaurant0,1 km
Huisarts0,4 km
Ziekenhuis2,6 km
Kinderdagverblijf0,1 km
BSO0,4 km
Alle voorzieningen in Cremerbuurt West

Binnenkijken bij Kanaalstraat 1661 te Amsterdam

Meer meldingen in deze omgeving

Nieuw bedrijf
Februari 2026
Jacob van Lennepkade 221A, 1054ZP Amsterdam

Nieuw bedrijf
Februari 2026
Wilhelminastraat 1791, 1054WE Amsterdam

Nieuw bedrijf
Februari 2026
Wilhelminastraat 1333, 1054WC Amsterdam

Binnenkijken bij
Woensdag 18-2-2026
Wilhelminastraat 1581, 1054WS Amsterdam

Binnenkijken bij
Woensdag 18-2-2026
Kanaalstraat 2062, 1054XS Amsterdam

Binnenkijken bij
Woensdag 18-2-2026
Rhijnvis Feithstraat 131, 1054TT Amsterdam

112 melding
Maandag 16-2-2026 om 10:33
Pieter Langendijkstraat, Amsterdam

112 melding
Zondag 15-2-2026 om 19:41
Pieter Langendijkstraat, Amsterdam

Direct een e-mail ontvangen bij nieuwe meldingen in deze regio?

Meld je dan GRATIS aan voor de Oozo Alert service voor Cremerbuurt West

Instellen

Meer nieuws in Cremerbuurt West

Weten hoe eenvoudig het is om af te vallen? Zonder pillen en smeersels en zonder je in het zweet te werken!
Kijk op eenvoudig-afvallen.nl

© 2012 - 2026 OOZO.nl - info@oozo.nl - Gegevens verwijderen? | Disclaimer | Privacy statement