Woning Rhijnvis Feithstraat 15 Amsterdam

Rhijnvis Feithstraat 15, 1054TT Amsterdam

Ontvang updates voor Cremerbuurt West

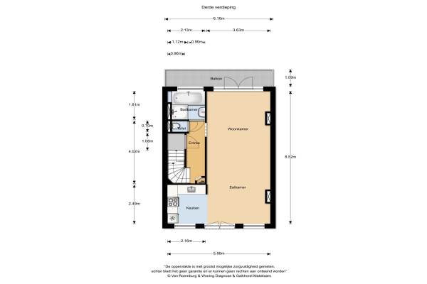
Het adres van deze woning uit 1906 is Rhijnvis Feithstraat 15 te Amsterdam. Het pand heeft een oppervlakte van 100m² en heeft 4 kamers kamers waarvan 3 slaapkamers. De geschatte waarde van deze woning is € 615.000.

Bekijk alle woningen in Cremerbuurt West

Gegevens van Bovenwoning (dubbel bovenhuis)

Bouwjaar
1906
Geschatte waarde
€ 615.000
Oppervlakte
100 m2
Inhoud
321 m3
Aantal kamers
4 kamers
Slaapkamers
3
Badkamers
1 apart toilet
Soort bouw
Bestaande bouw
Eigendomssituatie
Volle eigendom
Ligging
Aan rustige weg
Tuin
Zonneterras

Voorzieningen in de buurt

Boodschappen0,1 km
Grote supermarkt0,3 km
Cafetaria0,2 km
Restaurant0,1 km
Huisarts0,4 km
Ziekenhuis2,6 km
Kinderdagverblijf0,1 km
BSO0,4 km
Alle voorzieningen in Cremerbuurt West

Binnenkijken bij Rhijnvis Feithstraat 15 te Amsterdam

Meer meldingen in deze omgeving

112 melding
Vrijdag 5-12-2025 om 18:36
Derde Kostverlorenkade, Amsterdam

112 melding
Vrijdag 5-12-2025 om 18:35
Derde Kostverlorenkade, Amsterdam

Binnenkijken bij
Vrijdag 5-12-2025
Brederodestraat 1041, 1054VG Amsterdam

Nieuw bedrijf
December 2025
Wilhelminastraat 2091, 1054WG Amsterdam

Nieuw bedrijf
December 2025
Derde Kostverlorenkade 5F, 1054TN Amsterdam

Nieuw bedrijf
December 2025
J.J. Cremerstraat 91, 1054TC Amsterdam

Nieuw bedrijf
December 2025
Kanaalstraat 1243, 1054XM Amsterdam

Nieuw bedrijf
December 2025
Eerste Helmersstraat 331H, 1054EE Amsterdam

Direct een e-mail ontvangen bij nieuwe meldingen in deze regio?

Meld je dan GRATIS aan voor de Oozo Alert service voor Cremerbuurt West

Instellen

Meer nieuws in Cremerbuurt West

Weten hoe eenvoudig het is om af te vallen? Zonder pillen en smeersels en zonder je in het zweet te werken!
Kijk op eenvoudig-afvallen.nl

© 2012 - 2025 OOZO.nl - info@oozo.nl - Gegevens verwijderen? | Disclaimer | Privacy statement