Woning Staringplein 14 Amsterdam

Staringplein 14, 1054VL Amsterdam

Ontvang updates voor Cremerbuurt West

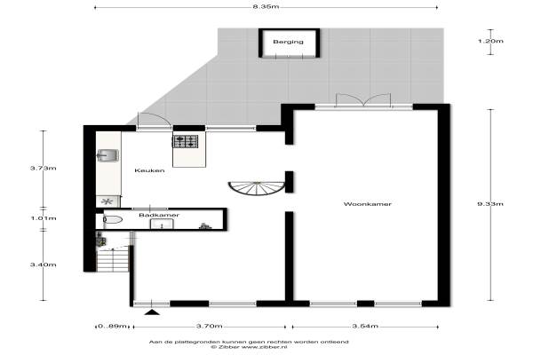
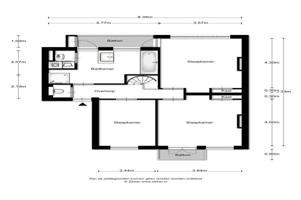
Het adres van deze woning uit 1907 is Staringplein 14 te Amsterdam. Het pand heeft een oppervlakte van 134m² en heeft 5 kamers kamers waarvan 3 slaapkamers. De geschatte waarde van deze woning is € 899.000.

Bekijk alle woningen in Cremerbuurt West

Gegevens van Benedenwoning (appartement)

Bouwjaar
1907
Geschatte waarde
€ 899.000
Oppervlakte
134 m2
Inhoud
538 m3
Aantal kamers
5 kamers
Slaapkamers
3
Badkamers
2 badkamers en 1 apart toilet
Soort bouw
Bestaande bouw
Eigendomssituatie
Gemeentelijk eigendom belast met erfpacht (einddatum erfpacht: 16-04-2031)
Tuin
Achtertuin
Achtertuin
36 m² (4,5m diep en 8m breed)

Voorzieningen in de buurt

Boodschappen0,1 km
Grote supermarkt0,3 km
Cafetaria0,2 km
Restaurant0,1 km
Huisarts0,4 km
Ziekenhuis2,6 km
Kinderdagverblijf0,1 km
BSO0,4 km
Alle voorzieningen in Cremerbuurt West

Binnenkijken bij Staringplein 14 te Amsterdam

Meer meldingen in deze omgeving

Binnenkijken bij
Maandag 6-4-2026
Staringstraat 104, 1054VP Amsterdam

Binnenkijken bij
Maandag 6-4-2026
Wilhelminastraat 793, 1054VX Amsterdam

Binnenkijken bij
Woensdag 1-4-2026
Jacob van Lennepkade 2632, 1054ZT Amsterdam

Binnenkijken bij
Woensdag 1-4-2026
Wilhelminastraat 1803, 1054WT Amsterdam

Binnenkijken bij
Woensdag 1-4-2026
Eerste Helmersstraat 2201, 1054EN Amsterdam

112 melding
Zondag 29-3-2026 om 15:44
Staringstraat, Amsterdam

Binnenkijken bij
Zondag 29-3-2026
Rhijnvis Feithstraat 28A, 1054TZ Amsterdam

Nieuw bedrijf
Maart 2026
Overtoom 5323, 1054LL Amsterdam

Direct een e-mail ontvangen bij nieuwe meldingen in deze regio?

Meld je dan GRATIS aan voor de Oozo Alert service voor Cremerbuurt West

Instellen

Meer nieuws in Cremerbuurt West

Weten hoe eenvoudig het is om af te vallen? Zonder pillen en smeersels en zonder je in het zweet te werken!
Kijk op eenvoudig-afvallen.nl

© 2012 - 2026 OOZO.nl - info@oozo.nl - Gegevens verwijderen? | Disclaimer | Privacy statement