Woning Kanaalstraat 188 Amsterdam

Kanaalstraat 188, 1054XS Amsterdam

Ontvang updates voor Cremerbuurt West

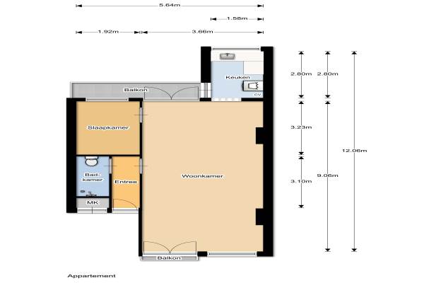
Het adres van deze woning uit 1913 is Kanaalstraat 188 te Amsterdam. Het pand heeft een oppervlakte van 49m² en heeft 2 kamers kamers waarvan 1 slaapkamers. De geschatte waarde van deze woning is € 300.000.

Bekijk alle woningen in Cremerbuurt West

Gegevens van Portiekflat (appartement)

Bouwjaar
1913
Geschatte waarde
€ 300.000
Oppervlakte
49 m2
Inhoud
157 m3
Aantal kamers
2 kamers
Slaapkamers
1
Badkamers
1 badkamer
Soort bouw
Bestaande bouw
Eigendomssituatie
Volle eigendom
Ligging
Aan rustige weg en in woonwijk

Voorzieningen in de buurt

Boodschappen0,1 km
Grote supermarkt0,3 km
Cafetaria0,2 km
Restaurant0,1 km
Huisarts0,4 km
Ziekenhuis2,6 km
Kinderdagverblijf0,1 km
BSO0,4 km
Alle voorzieningen in Cremerbuurt West

Binnenkijken bij Kanaalstraat 188 te Amsterdam

Meer meldingen in deze omgeving

Binnenkijken bij
Woensdag 26-11-2025
Rhijnvis Feithstraat 441, 1054VA Amsterdam

Nieuw bedrijf
November 2025
Jan Pieter Heijestraat 144C, 1054MJ Amsterdam

Nieuw bedrijf
November 2025
Derde Kostverlorenkade 393, 1054TS Amsterdam

Nieuw bedrijf
November 2025
Staringstraat 1J, 1054VM Amsterdam

Binnenkijken bij
Vrijdag 21-11-2025
Rhijnvis Feithstraat 184, 1054TX Amsterdam

Binnenkijken bij
Vrijdag 21-11-2025
Wilhelminastraat 154H, 1054WS Amsterdam

Binnenkijken bij
Vrijdag 21-11-2025
Wilhelminastraat 1803, 1054WT Amsterdam

Nieuw bedrijf
November 2025
Overtoom 3961, 1054JS Amsterdam

Direct een e-mail ontvangen bij nieuwe meldingen in deze regio?

Meld je dan GRATIS aan voor de Oozo Alert service voor Cremerbuurt West

Instellen

Meer nieuws in Cremerbuurt West

Weten hoe eenvoudig het is om af te vallen? Zonder pillen en smeersels en zonder je in het zweet te werken!
Kijk op eenvoudig-afvallen.nl

© 2012 - 2025 OOZO.nl - info@oozo.nl - Gegevens verwijderen? | Disclaimer | Privacy statement