Woning Kanaalstraat 102 Amsterdam

Kanaalstraat 102, 1054XL Amsterdam

Ontvang updates voor Cremerbuurt West

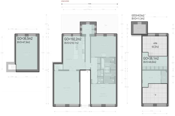
Het adres van deze woning uit 1901 is Kanaalstraat 102 te Amsterdam. Het pand heeft een oppervlakte van 267m² en heeft 6 kamers kamers waarvan 3 slaapkamers. De geschatte waarde van deze woning is € 1.985.000.

Bekijk alle woningen in Cremerbuurt West

Gegevens van Benedenwoning (appartement)

Bouwjaar
1901
Geschatte waarde
€ 1.985.000
Oppervlakte
267 m2
Inhoud
1187 m3
Aantal kamers
6 kamers
Slaapkamers
3
Badkamers
2 badkamers
Soort bouw
Bestaande bouw
Eigendomssituatie
Volle eigendom
Ligging
In woonwijk
Tuin
Achtertuin
Achtertuin
50 m² (13,5m diep en 3,68m breed)

Voorzieningen in de buurt

Boodschappen0,1 km
Grote supermarkt0,3 km
Cafetaria0,2 km
Restaurant0,1 km
Huisarts0,4 km
Ziekenhuis2,6 km
Kinderdagverblijf0,1 km
BSO0,4 km
Alle voorzieningen in Cremerbuurt West

Binnenkijken bij Kanaalstraat 102 te Amsterdam

Meer meldingen in deze omgeving

Binnenkijken bij
Zaterdag 29-11-2025
Overtoom 502H, 1054KJ Amsterdam

Binnenkijken bij
Vrijdag 28-11-2025
Wilhelminastraat 216H, 1054WV Amsterdam

Binnenkijken bij
Vrijdag 28-11-2025
Pieter Langendijkstraat 31C, 1054XX Amsterdam

Nieuw bedrijf
November 2025
Brederodestraat 734V, 1054VB Amsterdam

Nieuw bedrijf
November 2025
Overtoom 4561, 1054JW Amsterdam

Nieuw bedrijf
November 2025
Wilhelminastraat 110S, 1054WN Amsterdam

Nieuw bedrijf
November 2025
Wilhelminastraat 110S, 1054WN Amsterdam

Nieuw bedrijf
November 2025
Jan Pieter Heijestraat 144C, 1054MJ Amsterdam

Direct een e-mail ontvangen bij nieuwe meldingen in deze regio?

Meld je dan GRATIS aan voor de Oozo Alert service voor Cremerbuurt West

Instellen

Meer nieuws in Cremerbuurt West

Weten hoe eenvoudig het is om af te vallen? Zonder pillen en smeersels en zonder je in het zweet te werken!
Kijk op eenvoudig-afvallen.nl

© 2012 - 2025 OOZO.nl - info@oozo.nl - Gegevens verwijderen? | Disclaimer | Privacy statement