Woning Overtoom 499 Amsterdam

Overtoom 499, 1054LH Amsterdam

Ontvang updates voor Vondelparkbuurt West

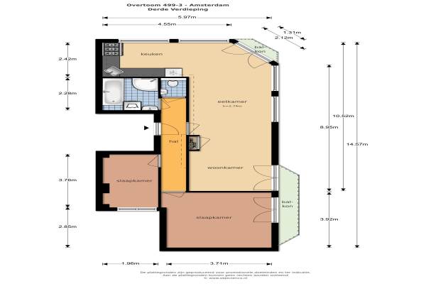
Het adres van deze woning uit 1916 is Overtoom 499 te Amsterdam. Het pand heeft een oppervlakte van 73m² en heeft 3 kamers kamers waarvan 2 slaapkamers. De geschatte waarde van deze woning is € 450.000.

Bekijk alle woningen in Vondelparkbuurt West

Gegevens van Bovenwoning (appartement)

Bouwjaar
1916
Geschatte waarde
€ 450.000
Oppervlakte
73 m2
Inhoud
245 m3
Aantal kamers
3 kamers
Slaapkamers
2
Badkamers
1 badkamer en 1 apart toilet
Soort bouw
Bestaande bouw
Eigendomssituatie
Volle eigendom
Ligging
In centrum, in woonwijk en vrij uitzicht

Voorzieningen in de buurt

Boodschappen0,2 km
Grote supermarkt0,4 km
Cafetaria0,2 km
Restaurant0,1 km
Huisarts0,7 km
Ziekenhuis2,8 km
Kinderdagverblijf0,1 km
BSO0,2 km
Alle voorzieningen in Vondelparkbuurt West

Binnenkijken bij Overtoom 499 te Amsterdam

Meer meldingen in deze omgeving

112 melding
Vrijdag 31-10-2025 om 23:36
Rijtuigenhof, Amsterdam

112 melding
Vrijdag 31-10-2025 om 23:36
Rijtuigenhof, Amsterdam

Binnenkijken bij
Donderdag 30-10-2025
Zocherstraat 513, 1054LT Amsterdam

Nieuw bedrijf
Oktober 2025
Saxenburgerstraat 72, 1054KM Amsterdam

Nieuw bedrijf
Oktober 2025
Reyer Anslostraat 162, 1054KV Amsterdam

112 melding
Woensdag 29-10-2025 om 18:18
Rijtuigenhof, Amsterdam

Binnenkijken bij
Woensdag 29-10-2025
Zocherstraat 411, 1054LS Amsterdam

Binnenkijken bij
Woensdag 29-10-2025
Frederiksstraat 392, 1054LB Amsterdam

Direct een e-mail ontvangen bij nieuwe meldingen in deze regio?

Meld je dan GRATIS aan voor de Oozo Alert service voor Vondelparkbuurt West

Instellen

Meer nieuws in Vondelparkbuurt West

Weten hoe eenvoudig het is om af te vallen? Zonder pillen en smeersels en zonder je in het zweet te werken!
Kijk op eenvoudig-afvallen.nl

© 2012 - 2025 OOZO.nl - info@oozo.nl - Gegevens verwijderen? | Disclaimer | Privacy statement