Woning Kempenlaan 49 Amsterdam

Kempenlaan 49, 1066PX Amsterdam

Ontvang updates voor Belgiëplein e.o.

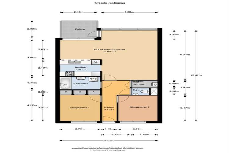
Het adres van deze woning uit 1994 is Kempenlaan 49 te Amsterdam. Het pand heeft een oppervlakte van 79m² en heeft 3 kamers kamers waarvan 2 slaapkamers. De geschatte waarde van deze woning is € 310.000.

Bekijk alle woningen in Belgiëplein e.o.

Gegevens van

Bouwjaar
1994
Geschatte waarde
€ 310.000
Oppervlakte
79 m2
Inhoud
191 m3
Aantal kamers
3 kamers
Slaapkamers
2
Badkamers
1 badkamer en 1 apart toilet
Soort bouw
Bestaande bouw
Eigendomssituatie
Gemeentelijk eigendom belast met erfpacht (einddatum erfpacht: 30-09-2042)
Ligging
Aan rustige weg en in woonwijk

Voorzieningen in de buurt

Boodschappen0,2 km
Grote supermarkt0,2 km
Cafetaria0,2 km
Restaurant0,2 km
Huisarts0,2 km
Ziekenhuis1,7 km
Kinderdagverblijf0,1 km
BSO0,2 km
Alle voorzieningen in Belgiëplein e.o.

Binnenkijken bij Kempenlaan 49 te Amsterdam

Meer meldingen in deze omgeving

Faillissement
Dinsdag 24-3-2026
Lange Lozanastraat 142, 2018 ANTWE 0, België

Faillissement
Dinsdag 24-3-2026
Hayenhoek 59, 3910 PELT 0, België

Faillissement
Dinsdag 24-3-2026
Prins Boudewijnlaan 5, 2550 Kontich 0, België

112 melding
Dinsdag 24-3-2026 om 08:02
Belgiëplein, Amsterdam

112 melding
Maandag 23-3-2026 om 23:45
Ardennenlaan, Amsterdam

Faillissement
Maandag 23-3-2026
Winston Churchilllaan 1, 8300 Knokk 0, België

112 melding
Zondag 22-3-2026 om 13:09
Kempenlaan, Amsterdam

Faillissement
Vrijdag 20-3-2026
Langeweidestraat 2 0, België

Direct een e-mail ontvangen bij nieuwe meldingen in deze regio?

Meld je dan GRATIS aan voor de Oozo Alert service voor Belgiëplein e.o.

Instellen

Meer nieuws in Belgiëplein e.o.

Weten hoe eenvoudig het is om af te vallen? Zonder pillen en smeersels en zonder je in het zweet te werken!
Kijk op eenvoudig-afvallen.nl

© 2012 - 2026 OOZO.nl - info@oozo.nl - Gegevens verwijderen? | Disclaimer | Privacy statement