Woning Belgiëplein 96 Amsterdam

Belgiëplein 96, 1066SC Amsterdam

Ontvang updates voor Belgiëplein e.o.

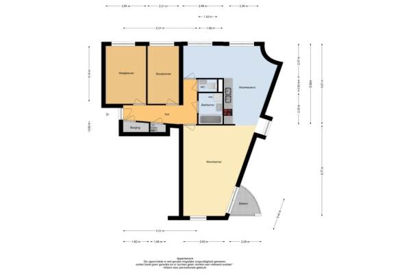
Het adres van deze woning uit 1994 is Belgiëplein 96 te Amsterdam. Het pand heeft een oppervlakte van 90m² en heeft 3 kamers kamers waarvan 2 slaapkamers.

Bekijk alle woningen in Belgiëplein e.o.

Gegevens van Appartement

Bouwjaar
1994
Geschatte waarde
€ 0
Oppervlakte
90 m2
Inhoud
215 m3
Aantal kamers
3 kamers
Slaapkamers
2
Badkamers
1 badkamer en 1 apart toilet
Eigendomssituatie
Erfpacht (einddatum erfpacht: 30-09-2042)
Ligging
In woonwijk
Tuin
Balkon aanwezig

Voorzieningen in de buurt

Boodschappen0,2 km
Grote supermarkt0,2 km
Cafetaria0,2 km
Restaurant0,2 km
Huisarts0,2 km
Ziekenhuis1,7 km
Kinderdagverblijf0,1 km
BSO0,2 km
Alle voorzieningen in Belgiëplein e.o.

Binnenkijken bij Belgiëplein 96 te Amsterdam

Meer meldingen in deze omgeving

Nieuw bedrijf
Januari 2026
Laan van Vlaanderen 224, 1066MR Amsterdam

112 melding
Dinsdag 30-12-2025 om 16:08
Ardennenlaan, Amsterdam

Faillissement
Maandag 22-12-2025
Winston Churchilllaan 1, 8300 Knokk 0, België

Nieuw bedrijf
December 2025
Laan van Vlaanderen 144, 1066MR Amsterdam

Nieuw bedrijf
December 2025
Ardennenlaan 81, 1066MJ Amsterdam

Binnenkijken bij
Zaterdag 20-12-2025
Kempenlaan 32, 1066PX Amsterdam

112 melding
Donderdag 18-12-2025 om 22:56
Ardennenlaan, Amsterdam

Faillissement
Woensdag 17-12-2025
Postelsebaan 62 001, 2470 Retie 0, België

Direct een e-mail ontvangen bij nieuwe meldingen in deze regio?

Meld je dan GRATIS aan voor de Oozo Alert service voor Belgiëplein e.o.

Instellen

Meer nieuws in Belgiëplein e.o.

Weten hoe eenvoudig het is om af te vallen? Zonder pillen en smeersels en zonder je in het zweet te werken!
Kijk op eenvoudig-afvallen.nl

© 2012 - 2026 OOZO.nl - info@oozo.nl - Gegevens verwijderen? | Disclaimer | Privacy statement