Woning Cornelis van Rijplantsoen 70 Amsterdam

Cornelis van Rijplantsoen 70, 1063MD Amsterdam

Ontvang updates voor Buurt 2

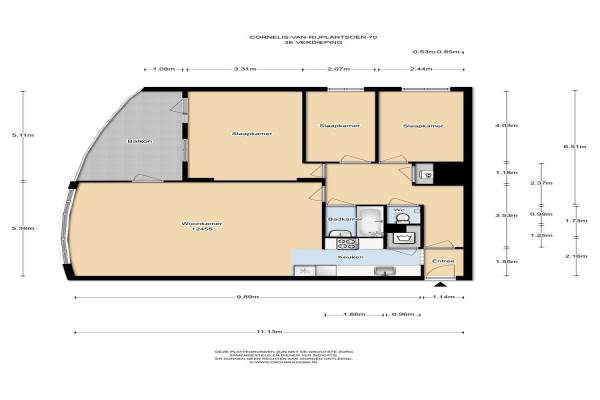
Het adres van deze woning is Cornelis van Rijplantsoen 70 te Amsterdam. Het pand heeft een oppervlakte van 101m² en heeft 4 kamers kamers waarvan 3 slaapkamers. De geschatte waarde van deze woning is € 350.000.

Bekijk alle woningen in Buurt 2

Gegevens van Bovenwoning (appartement)

Geschatte waarde
€ 350.000
Oppervlakte
101 m2
Inhoud
292 m3
Aantal kamers
4 kamers
Slaapkamers
3
Badkamers
1 badkamer en 1 apart toilet
Soort bouw
Bestaande bouw
Eigendomssituatie
Gemeentelijk eigendom belast met erfpacht (einddatum erfpacht: 01-01-2044)
Ligging
Aan water, in woonwijk en vrij uitzicht

Voorzieningen in de buurt

Boodschappen0,2 km
Grote supermarkt0,4 km
Cafetaria0,3 km
Restaurant0,3 km
Huisarts0,4 km
Ziekenhuis1,6 km
Kinderdagverblijf0,5 km
BSO0,6 km
Alle voorzieningen in Buurt 2

Binnenkijken bij Cornelis van Rijplantsoen 70 te Amsterdam

Meer meldingen in deze omgeving

112 melding
Maandag 16-3-2026 om 19:41
Theodorus Dobbestraat, Amsterdam

Binnenkijken bij
Zaterdag 14-3-2026
Willem Kraanstraat 78, 1063ML Amsterdam

Nieuw bedrijf
Maart 2026
Hermanus Coenradistraat 113, 1063XN Amsterdam

112 melding
Vrijdag 6-3-2026 om 15:18
Lex Althoffstraat, Amsterdam

112 melding
Vrijdag 6-3-2026 om 14:55
Lex Althoffstraat, Amsterdam

112 melding
Donderdag 5-3-2026 om 13:56
Dirk Bonsstraat, Amsterdam

112 melding
Donderdag 5-3-2026 om 06:30
Cornelis van Rijplantsoen, Amsterdam

Binnenkijken bij
Donderdag 5-3-2026
Freek Oxstraat 31, 1063ZS Amsterdam

Direct een e-mail ontvangen bij nieuwe meldingen in deze regio?

Meld je dan GRATIS aan voor de Oozo Alert service voor Buurt 2

Instellen

Meer nieuws in Buurt 2

Weten hoe eenvoudig het is om af te vallen? Zonder pillen en smeersels en zonder je in het zweet te werken!
Kijk op eenvoudig-afvallen.nl

© 2012 - 2026 OOZO.nl - info@oozo.nl - Gegevens verwijderen? | Disclaimer | Privacy statement