Woning Lou Jansenplein 33-III Amsterdam

Lou Jansenplein 33-III, 1063GV Amsterdam

Ontvang updates voor Buurt 3

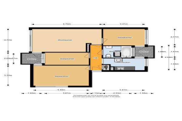
Het adres van deze woning is Lou Jansenplein 33-III te Amsterdam. Het pand heeft een oppervlakte van 68m² en heeft 4 kamers kamers waarvan 3 slaapkamers. De geschatte waarde van deze woning is € 200.000.

Bekijk alle woningen in Buurt 3

Gegevens van Galerijflat

Geschatte waarde
€ 200.000
Oppervlakte
68 m2
Inhoud
240 m3
Aantal kamers
4 kamers
Slaapkamers
3
Badkamers
1 badkamer
Soort bouw
Bestaande bouw
Eigendomssituatie
Gemeentelijk eigendom belast met erfpacht (einddatum erfpacht: 16-04-2032)
Ligging
Beschutte ligging en in woonwijk

Voorzieningen in de buurt

Boodschappen0,3 km
Grote supermarkt0,6 km
Cafetaria0,3 km
Restaurant0,3 km
Huisarts0,5 km
Ziekenhuis2,0 km
Kinderdagverblijf0,3 km
BSO0,3 km
Alle voorzieningen in Buurt 3

Binnenkijken bij Lou Jansenplein 33-III te Amsterdam

Meer meldingen in deze omgeving

112 melding
Zaterdag 15-11-2025 om 19:05
Johannes Meewisstraat, Amsterdam

Binnenkijken bij
Zaterdag 15-11-2025
Ferry Ploegerstraat 1B, 1063AT Amsterdam

Binnenkijken bij
Zaterdag 15-11-2025
Ferry Ploegerstraat 1C, 1063AT Amsterdam

Nieuw bedrijf
November 2025
Lou Jansenplein 181, 1063GX Amsterdam

Nieuw bedrijf
November 2025
Wiardi Beckmanstraat 13W, 1063TG Amsterdam

Nieuw bedrijf
November 2025
Van Hanxleden Houwertstraat 231, 1063HN Amsterdam

Nieuw bedrijf
November 2025
Victor Rutgersstraat 2, 1063GH Amsterdam

Nieuw bedrijf
November 2025
Louis Naarstigstraat 6, 1063EN Amsterdam

Direct een e-mail ontvangen bij nieuwe meldingen in deze regio?

Meld je dan GRATIS aan voor de Oozo Alert service voor Buurt 3

Instellen

Meer nieuws in Buurt 3

Weten hoe eenvoudig het is om af te vallen? Zonder pillen en smeersels en zonder je in het zweet te werken!
Kijk op eenvoudig-afvallen.nl

© 2012 - 2025 OOZO.nl - info@oozo.nl - Gegevens verwijderen? | Disclaimer | Privacy statement