Woning Fritz Conijnstraat 8 Amsterdam

Fritz Conijnstraat 8, 1063CC Amsterdam

Ontvang updates voor Buurt 3

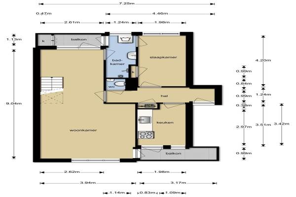
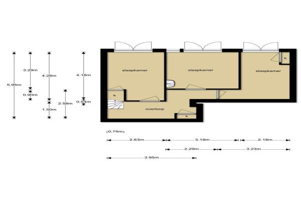
Het adres van deze woning uit 1955 is Fritz Conijnstraat 8 te Amsterdam. Het pand heeft een oppervlakte van 101m² en heeft 5 kamers kamers waarvan 4 slaapkamers. De geschatte waarde van deze woning is € 275.000.

Bekijk alle woningen in Buurt 3

Gegevens van Maisonnette (appartement)

Bouwjaar
1955
Geschatte waarde
€ 275.000
Oppervlakte
101 m2
Inhoud
347 m3
Aantal kamers
5 kamers
Slaapkamers
4
Badkamers
1 badkamer en 1 apart toilet
Soort bouw
Bestaande bouw
Eigendomssituatie
Gemeentelijk eigendom belast met erfpacht
Ligging
Aan rustige weg en in woonwijk
Tuin
Achtertuin
Achtertuin
38 m² (4,75m diep en 8m breed)

Voorzieningen in de buurt

Boodschappen0,3 km
Grote supermarkt0,6 km
Cafetaria0,3 km
Restaurant0,3 km
Huisarts0,5 km
Ziekenhuis2,0 km
Kinderdagverblijf0,3 km
BSO0,3 km
Alle voorzieningen in Buurt 3

Binnenkijken bij Fritz Conijnstraat 8 te Amsterdam

Meer meldingen in deze omgeving

Nieuw bedrijf
Januari 2026
Burgemeester Fockstraat 62, 1063CV Amsterdam

112 melding
Zaterdag 24-1-2026 om 16:31
Jan Zwanenburghof, Amsterdam

112 melding
Vrijdag 23-1-2026 om 21:50
Harry Koningsbergerstraat, Amsterdam

112 melding
Vrijdag 23-1-2026 om 17:58
Lou Jansenplein, 1063 Amsterdam

112 melding
Vrijdag 23-1-2026 om 14:11
Burgemeester Vening Meineszlaan, Amsterdam

112 melding
Donderdag 22-1-2026 om 22:43
Anton Struikstraat, Amsterdam

112 melding
Donderdag 22-1-2026 om 21:53
Anton Struikstraat, Amsterdam

112 melding
Donderdag 22-1-2026 om 21:53
Anton Struikstraat, Amsterdam

Direct een e-mail ontvangen bij nieuwe meldingen in deze regio?

Meld je dan GRATIS aan voor de Oozo Alert service voor Buurt 3

Instellen

Meer nieuws in Buurt 3

Weten hoe eenvoudig het is om af te vallen? Zonder pillen en smeersels en zonder je in het zweet te werken!
Kijk op eenvoudig-afvallen.nl

© 2012 - 2026 OOZO.nl - info@oozo.nl - Gegevens verwijderen? | Disclaimer | Privacy statement