Woning Adolphine Eduardine Kokplantsoen 62 Amsterdam

Adolphine Eduardine Kokplantsoen 62, 1063PW Amsterdam

Ontvang updates voor Buurt 4 Oost

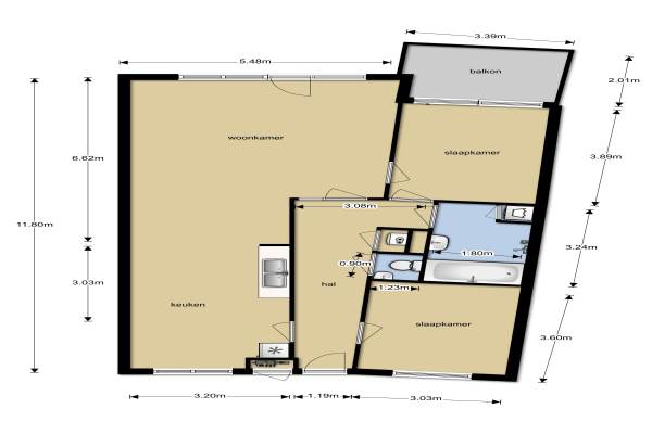
Het adres van deze woning is Adolphine Eduardine Kokplantsoen 62 te Amsterdam. Het pand heeft een oppervlakte van 94m² en heeft 3 kamers kamers waarvan 2 slaapkamers. De geschatte waarde van deze woning is € 275.000.

Bekijk alle woningen in Buurt 4 Oost

Gegevens van Galerijflat (appartement)

Geschatte waarde
€ 275.000
Oppervlakte
94 m2
Inhoud
276 m3
Aantal kamers
3 kamers
Slaapkamers
2
Soort bouw
Bestaande bouw
Eigendomssituatie
Gemeentelijke erfpacht (einddatum erfpacht: 30-11-2045)
Ligging
Aan rustige weg, in woonwijk en vrij uitzicht

Voorzieningen in de buurt

Boodschappen0,4 km
Grote supermarkt0,5 km
Cafetaria0,4 km
Restaurant0,4 km
Huisarts0,6 km
Ziekenhuis2,4 km
Kinderdagverblijf0,3 km
BSO0,7 km
Alle voorzieningen in Buurt 4 Oost

Binnenkijken bij Adolphine Eduardine Kokplantsoen 62 te Amsterdam

Meer meldingen in deze omgeving

112 melding
Dinsdag 25-11-2025 om 07:26
Tobias M.C. Asserstraat, Amsterdam

Nieuw bedrijf
November 2025
Willem Molengraaffstraat 221, 1063LL Amsterdam

Nieuw bedrijf
November 2025
Cornelis van Vollenhovenstraat 32, 1063KS Amsterdam

112 melding
Zondag 23-11-2025 om 08:20
Tobias M.C. Asserstraat, Amsterdam

Binnenkijken bij
Vrijdag 21-11-2025
Cornelis van Vollenhovenstraat 48, 1063KT Amsterdam

Nieuw bedrijf
November 2025
Adolphine Eduardine Kokplantsoen 42, 1063PV Amsterdam

Nieuw bedrijf
November 2025
Jacques Oppenheimstraat 83, 1063PR Amsterdam

Nieuw bedrijf
November 2025
Jacques Oppenheimstraat 83, 1063PR Amsterdam

Direct een e-mail ontvangen bij nieuwe meldingen in deze regio?

Meld je dan GRATIS aan voor de Oozo Alert service voor Buurt 4 Oost

Instellen

Meer nieuws in Buurt 4 Oost

Weten hoe eenvoudig het is om af te vallen? Zonder pillen en smeersels en zonder je in het zweet te werken!
Kijk op eenvoudig-afvallen.nl

© 2012 - 2025 OOZO.nl - info@oozo.nl - Gegevens verwijderen? | Disclaimer | Privacy statement