Woning John Motleyhof 123 Amsterdam

John Motleyhof 12-3, 1065XP Amsterdam

Ontvang updates voor Jacob Geelbuurt

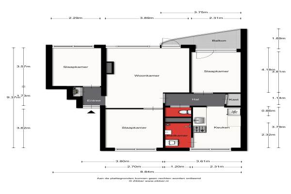
Het adres van deze woning uit 1957 is John Motleyhof 123 te Amsterdam. Het pand heeft een oppervlakte van 70m² en heeft 4 kamers kamers waarvan 3 slaapkamers. De geschatte waarde van deze woning is € 239.000.

Bekijk alle woningen in Jacob Geelbuurt

Gegevens van Bovenwoning (appartement)

Bouwjaar
1957
Geschatte waarde
€ 239.000
Oppervlakte
70 m2
Inhoud
232 m3
Aantal kamers
4 kamers
Slaapkamers
3
Badkamers
1 badkamer en 1 apart toilet
Soort bouw
Bestaande bouw
Eigendomssituatie
Gemeentelijke erfpacht
Ligging
Aan rustige weg en in woonwijk

Voorzieningen in de buurt

Boodschappen0,2 km
Grote supermarkt0,6 km
Cafetaria0,3 km
Restaurant0,2 km
Huisarts0,7 km
Ziekenhuis1,8 km
Kinderdagverblijf0,3 km
BSO0,2 km
Alle voorzieningen in Jacob Geelbuurt

Binnenkijken bij John Motleyhof 123 te Amsterdam

Meer meldingen in deze omgeving

112 melding
Dinsdag 2-12-2025 om 15:18
Justus Lipsiusstraat, 1065TZ Amsterdam

112 melding
Dinsdag 2-12-2025 om 11:56
Petrus Blokhof, Amsterdam

Nieuw bedrijf
November 2025
Comeniusstraat 407, 1065BV Amsterdam

Nieuw bedrijf
November 2025
Jacob Geelstraat 25, 1065VN Amsterdam

112 melding
Donderdag 27-11-2025 om 15:33
Justus Halbertsmastraat, Amsterdam

112 melding
Vrijdag 21-11-2025 om 13:56
Justus Lipsiusstraat, 1065TZ Amsterdam

Nieuw bedrijf
November 2025
Isaak Gosseshof 122, 1065XH Amsterdam

Nieuw bedrijf
November 2025
Comeniusstraat 103, 1065BJ Amsterdam

Direct een e-mail ontvangen bij nieuwe meldingen in deze regio?

Meld je dan GRATIS aan voor de Oozo Alert service voor Jacob Geelbuurt

Instellen

Meer nieuws in Jacob Geelbuurt

Weten hoe eenvoudig het is om af te vallen? Zonder pillen en smeersels en zonder je in het zweet te werken!
Kijk op eenvoudig-afvallen.nl

© 2012 - 2025 OOZO.nl - info@oozo.nl - Gegevens verwijderen? | Disclaimer | Privacy statement