Woning Jacques Veltmanstraat 64 Amsterdam

Jacques Veltmanstraat 64, 1065EM Amsterdam

Ontvang updates voor Jacques Veldmanbuurt

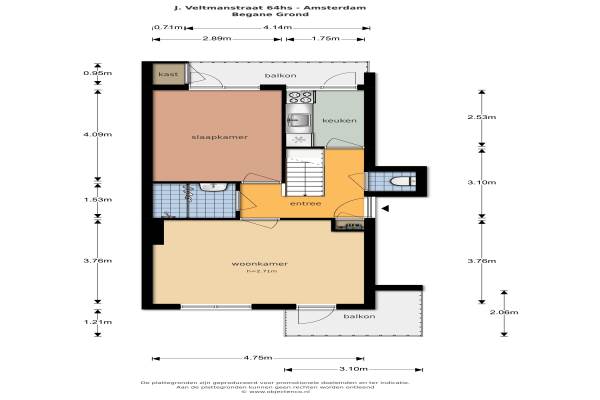
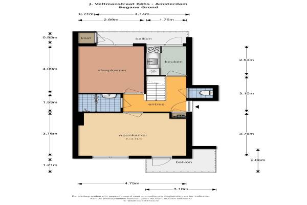
Het adres van deze woning uit 1956 is Jacques Veltmanstraat 64 te Amsterdam. Het pand heeft een oppervlakte van 75m² en heeft 4 kamers kamers waarvan 3 slaapkamers. De geschatte waarde van deze woning is € 248.800.

Bekijk alle woningen in Jacques Veldmanbuurt

Gegevens van Beneden + bovenwoning (appartement)

Bouwjaar
1956
Geschatte waarde
€ 248.800
Oppervlakte
75 m2
Inhoud
265 m3
Aantal kamers
4 kamers
Slaapkamers
3
Badkamers
1 badkamer en 1 apart toilet
Soort bouw
Bestaande bouw
Eigendomssituatie
Gemeentelijke erfpacht (einddatum erfpacht: 30-11-2054)
Ligging
Aan rustige weg en in woonwijk
Tuin
Achtertuin
Achtertuin
35 m² (7,5m diep en 4,5m breed)

Voorzieningen in de buurt

Boodschappen0,3 km
Grote supermarkt0,5 km
Cafetaria0,2 km
Restaurant0,3 km
Huisarts0,6 km
Ziekenhuis1,6 km
Kinderdagverblijf0,6 km
BSO0,6 km
Alle voorzieningen in Jacques Veldmanbuurt

Binnenkijken bij Jacques Veltmanstraat 64 te Amsterdam

Meer meldingen in deze omgeving

Binnenkijken bij
Donderdag 9-10-2025
Hendrik de Bruynstraat 91, 1065EB Amsterdam

112 melding
Woensdag 8-10-2025 om 22:27
Jacques Veltmanstraat, 1065DZ Amsterdam

112 melding
Woensdag 8-10-2025 om 17:55
Hendrik de Bruynstraat, Amsterdam

112 melding
Woensdag 8-10-2025 om 17:38
Hendrik de Bruynstraat, Amsterdam

Nieuw bedrijf
Oktober 2025
Johan Huizingalaan 397, 1066TX Amsterdam

Nieuw bedrijf
Oktober 2025
Ward Bingleystraat 59, 1065TK Amsterdam

Nieuw bedrijf
Oktober 2025
Pieter Calandlaan 222, 1065KM Amsterdam

Nieuw bedrijf
Oktober 2025
Reinier Engelmanstraat 123, 1065TT Amsterdam

Direct een e-mail ontvangen bij nieuwe meldingen in deze regio?

Meld je dan GRATIS aan voor de Oozo Alert service voor Jacques Veldmanbuurt

Instellen

Meer nieuws in Jacques Veldmanbuurt

Weten hoe eenvoudig het is om af te vallen? Zonder pillen en smeersels en zonder je in het zweet te werken!
Kijk op eenvoudig-afvallen.nl

© 2012 - 2025 OOZO.nl - info@oozo.nl - Gegevens verwijderen? | Disclaimer | Privacy statement