Woning Jacques Veltmanstraat 16 Amsterdam

Jacques Veltmanstraat 16, 1065EH Amsterdam

Ontvang updates voor Jacques Veldmanbuurt

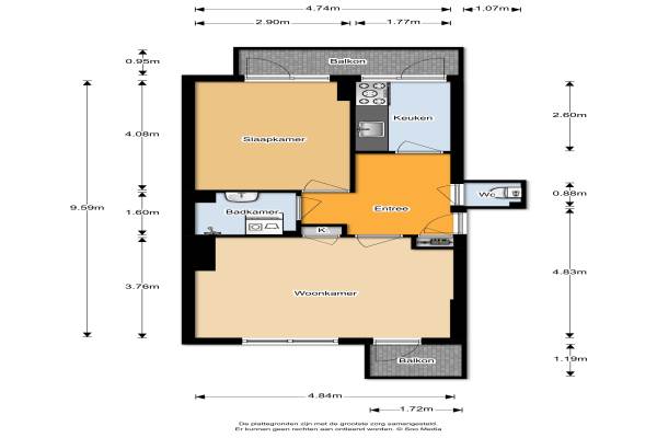
Het adres van deze woning uit 1956 is Jacques Veltmanstraat 16 te Amsterdam. Het pand heeft een oppervlakte van 46m² en heeft 2 kamers kamers waarvan 1 slaapkamers. De geschatte waarde van deze woning is € 200.000.

Bekijk alle woningen in Jacques Veldmanbuurt

Gegevens van Bovenwoning (appartement)

Bouwjaar
1956
Geschatte waarde
€ 200.000
Oppervlakte
46 m2
Inhoud
160 m3
Aantal kamers
2 kamers
Slaapkamers
1
Badkamers
1 badkamer en 1 apart toilet
Soort bouw
Bestaande bouw
Eigendomssituatie
Gemeentelijk eigendom belast met erfpacht (einddatum erfpacht: 30-11-2054)
Ligging
Aan rustige weg

Voorzieningen in de buurt

Boodschappen0,3 km
Grote supermarkt0,5 km
Cafetaria0,2 km
Restaurant0,3 km
Huisarts0,6 km
Ziekenhuis1,6 km
Kinderdagverblijf0,6 km
BSO0,6 km
Alle voorzieningen in Jacques Veldmanbuurt

Binnenkijken bij Jacques Veltmanstraat 16 te Amsterdam

Meer meldingen in deze omgeving

Binnenkijken bij
Dinsdag 25-11-2025
Jacques Veltmanstraat 683, 1065EM Amsterdam

112 melding
Zondag 23-11-2025 om 14:28
Reinier Engelmanstraat, 1065TT Amsterdam

112 melding
Zondag 23-11-2025 om 10:05
Johannes Jelgerhuishof, Amsterdam

Nieuw bedrijf
November 2025
Ariana Nozemanstraat 45, 1065TR Amsterdam

Nieuw bedrijf
November 2025
Jacques Veltmanstraat 1277, 1065DZ Amsterdam

112 melding
Donderdag 20-11-2025 om 10:14
Theodorus Majofskistraat, Amsterdam

Binnenkijken bij
Dinsdag 18-11-2025
Ward Bingleystraat 211, 1065TJ Amsterdam

Binnenkijken bij
Zondag 16-11-2025
Theodorus Majofskistraat 312, 1065SR Amsterdam

Direct een e-mail ontvangen bij nieuwe meldingen in deze regio?

Meld je dan GRATIS aan voor de Oozo Alert service voor Jacques Veldmanbuurt

Instellen

Meer nieuws in Jacques Veldmanbuurt

Weten hoe eenvoudig het is om af te vallen? Zonder pillen en smeersels en zonder je in het zweet te werken!
Kijk op eenvoudig-afvallen.nl

© 2012 - 2025 OOZO.nl - info@oozo.nl - Gegevens verwijderen? | Disclaimer | Privacy statement