Woning Van Rappardstraat 13II Amsterdam

Van Rappardstraat 13II, 1051HW Amsterdam

Ontvang updates voor Buyskade e.o.

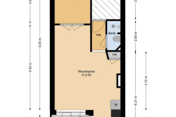
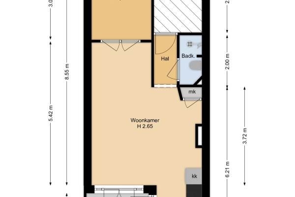
Het adres van deze woning uit 1916 is Van Rappardstraat 13II te Amsterdam. Het pand heeft een oppervlakte van 35m² en heeft 2 kamers kamers waarvan 1 slaapkamers. De geschatte waarde van deze woning is € 315.000.

Bekijk alle woningen in Buyskade e.o.

Gegevens van Bovenwoning (appartement)

Bouwjaar
1916
Geschatte waarde
€ 315.000
Oppervlakte
35 m2
Inhoud
115 m3
Aantal kamers
2 kamers
Slaapkamers
1
Badkamers
1 badkamer
Soort bouw
Bestaande bouw
Eigendomssituatie
Volle eigendom
Ligging
Aan rustige weg, in woonwijk en vrij uitzicht

Voorzieningen in de buurt

Boodschappen0,2 km
Grote supermarkt0,7 km
Cafetaria0,2 km
Restaurant0,1 km
Huisarts0,3 km
Ziekenhuis2,3 km
Kinderdagverblijf0,2 km
BSO0,4 km
Alle voorzieningen in Buyskade e.o.

Binnenkijken bij Van Rappardstraat 13II te Amsterdam

Meer meldingen in deze omgeving

112 melding
Vrijdag 13-2-2026 om 00:26
Van Rappardstraat, Amsterdam

Binnenkijken bij
Donderdag 12-2-2026
Van Bossestraat 106B, 1051KD Amsterdam

Binnenkijken bij
Woensdag 11-2-2026
Van Bossestraat 783, 1051KB Amsterdam

112 melding
Zaterdag 7-2-2026 om 06:23
Van der Palmkade, Amsterdam

Binnenkijken bij
Zaterdag 7-2-2026
Van Bossestraat 802, 1051KB Amsterdam

112 melding
Donderdag 5-2-2026 om 18:31
Schaepmanstraat, Amsterdam

112 melding
Dinsdag 27-1-2026 om 07:13
Van Rappardstraat, Amsterdam

Nieuw bedrijf
Januari 2026
De Kempenaerstraat 28H, 1051CP Amsterdam

Direct een e-mail ontvangen bij nieuwe meldingen in deze regio?

Meld je dan GRATIS aan voor de Oozo Alert service voor Buyskade e.o.

Instellen

Meer nieuws in Buyskade e.o.

Weten hoe eenvoudig het is om af te vallen? Zonder pillen en smeersels en zonder je in het zweet te werken!
Kijk op eenvoudig-afvallen.nl

© 2012 - 2026 OOZO.nl - info@oozo.nl - Gegevens verwijderen? | Disclaimer | Privacy statement