Woning Nassaukade 42 Amsterdam

Nassaukade 42, 1052CL Amsterdam

Ontvang updates voor De Wittenbuurt Noord

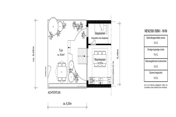
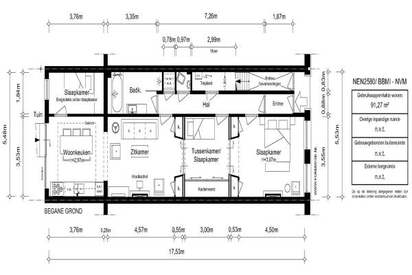
Het adres van deze woning is Nassaukade 42 te Amsterdam. Het pand heeft een oppervlakte van 91m² en heeft 4 kamers kamers waarvan 3 slaapkamers. De geschatte waarde van deze woning is € 545.000.

Bekijk alle woningen in De Wittenbuurt Noord

Gegevens van Benedenwoning

Bouwjaar
Voor 1906
Geschatte waarde
€ 545.000
Oppervlakte
91 m2
Inhoud
281 m3
Aantal kamers
4 kamers
Slaapkamers
3
Badkamers
1 badkamer en 1 apart toilet
Soort bouw
Bestaande bouw
Eigendomssituatie
Gemeentelijke erfpacht (einddatum erfpacht: 30-06-2024)
Ligging
In woonwijk en aan vaarwater
Tuin
Achtertuin
Achtertuin
38 m² (6,35m diep en 6,05m breed)

Voorzieningen in de buurt

Boodschappen0,2 km
Grote supermarkt0,2 km
Cafetaria0,2 km
Restaurant0,1 km
Huisarts0,2 km
Ziekenhuis2,2 km
Kinderdagverblijf0,1 km
BSO0,2 km
Alle voorzieningen in De Wittenbuurt Noord

Binnenkijken bij Nassaukade 42 te Amsterdam

Meer meldingen in deze omgeving

112 melding
Vrijdag 10-4-2026 om 17:22
Nassauplein, 1052AH Amsterdam

112 melding
Vrijdag 10-4-2026 om 17:22
Nassauplein, 1052AH Amsterdam

Binnenkijken bij
Woensdag 8-4-2026
Eerste Nassaustraat 63, 1052BG Amsterdam

Nieuw bedrijf
Maart 2026
De Wittenstraat 33B, 1052AL Amsterdam

Nieuw bedrijf
Maart 2026
De Wittenstraat 27, 1052AK Amsterdam

Nieuw bedrijf
Maart 2026
De Wittenstraat 76H, 1052BA Amsterdam

Binnenkijken bij
Donderdag 19-3-2026
De Wittenstraat 492, 1052AL Amsterdam

Binnenkijken bij
Donderdag 5-3-2026
De Wittenstraat 741, 1052BA Amsterdam

Direct een e-mail ontvangen bij nieuwe meldingen in deze regio?

Meld je dan GRATIS aan voor de Oozo Alert service voor De Wittenbuurt Noord

Instellen

Meer nieuws in De Wittenbuurt Noord

Weten hoe eenvoudig het is om af te vallen? Zonder pillen en smeersels en zonder je in het zweet te werken!
Kijk op eenvoudig-afvallen.nl

© 2012 - 2026 OOZO.nl - info@oozo.nl - Gegevens verwijderen? | Disclaimer | Privacy statement