Woning Cliffordstraat 44III Amsterdam

Cliffordstraat 44III, 1051GV Amsterdam

Ontvang updates voor Westerstaatsman

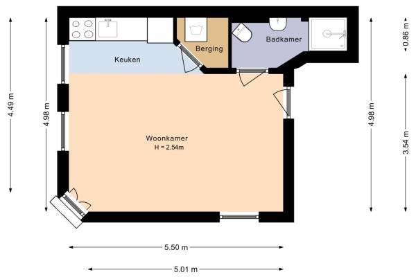
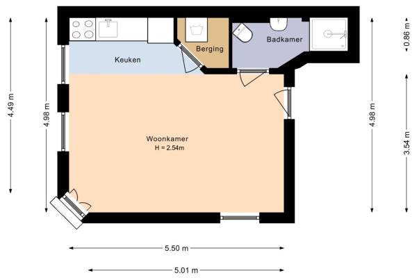
Het adres van deze woning uit 1910 is Cliffordstraat 44III te Amsterdam. Het pand heeft een oppervlakte van 29m² en heeft 1 kamers kamers waarvan 1 slaapkamers. De geschatte waarde van deze woning is € 290.000.

Bekijk alle woningen in Westerstaatsman

Gegevens van Bovenwoning (appartement)

Bouwjaar
1910
Geschatte waarde
€ 290.000
Oppervlakte
29 m2
Inhoud
100 m3
Aantal kamers
1 kamers
Slaapkamers
1
Badkamers
1 badkamer
Soort bouw
Bestaande bouw
Eigendomssituatie
Volle eigendom
Ligging
Aan drukke weg, in woonwijk en vrij uitzicht

Voorzieningen in de buurt

Boodschappen0,2 km
Grote supermarkt0,5 km
Cafetaria0,2 km
Restaurant0,1 km
Huisarts0,3 km
Ziekenhuis2,5 km
Kinderdagverblijf0,2 km
BSO0,2 km
Alle voorzieningen in Westerstaatsman

Binnenkijken bij Cliffordstraat 44III te Amsterdam

Meer meldingen in deze omgeving

Binnenkijken bij
Woensdag 7-1-2026
Eerste Keucheniusstraat 263, 1051HS Amsterdam

Nieuw bedrijf
Januari 2026
Groen van Prinstererstraat 106H, 1051ER Amsterdam

Nieuw bedrijf
December 2025
Van Beuningenstraat 2092, 1051XR Amsterdam

Nieuw bedrijf
December 2025
Rochussenstraat 122, 1051JK Amsterdam

Nieuw bedrijf
December 2025
Groen van Prinstererstraat 106H, 1051ER Amsterdam

Binnenkijken bij
Zaterdag 20-12-2025
Van Bossestraat 40H, 1051KA Amsterdam

Nieuw bedrijf
December 2025
Eerste Keucheniusstraat 28H, 1051HS Amsterdam

Nieuw bedrijf
December 2025
Van Hallstraat 833, 1051HA Amsterdam

Direct een e-mail ontvangen bij nieuwe meldingen in deze regio?

Meld je dan GRATIS aan voor de Oozo Alert service voor Westerstaatsman

Instellen

Meer nieuws in Westerstaatsman

Weten hoe eenvoudig het is om af te vallen? Zonder pillen en smeersels en zonder je in het zweet te werken!
Kijk op eenvoudig-afvallen.nl

© 2012 - 2026 OOZO.nl - info@oozo.nl - Gegevens verwijderen? | Disclaimer | Privacy statement