Woning Krugerstraat 21 Amsterdam

Krugerstraat 21, 1091LC Amsterdam

Ontvang updates voor Transvaalbuurt West

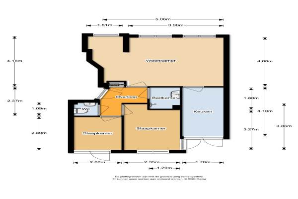
Het adres van deze woning uit 1930 is Krugerstraat 21 te Amsterdam. Het pand heeft een oppervlakte van 51m² en heeft 3 kamers kamers waarvan 2 slaapkamers. De geschatte waarde van deze woning is € 275.000.

Bekijk alle woningen in Transvaalbuurt West

Gegevens van Benedenwoning (appartement)

Bouwjaar
1930
Geschatte waarde
€ 275.000
Oppervlakte
51 m2
Inhoud
200 m3
Aantal kamers
3 kamers
Slaapkamers
2
Badkamers
1 badkamer en 1 apart toilet
Soort bouw
Bestaande bouw
Eigendomssituatie
Gemeentelijk eigendom belast met erfpacht (einddatum erfpacht: 30-06-2062)
Ligging
In centrum
Tuin
Achtertuin

Voorzieningen in de buurt

Boodschappen0,2 km
Grote supermarkt0,3 km
Cafetaria0,2 km
Restaurant0,2 km
Huisarts0,2 km
Ziekenhuis0,7 km
Kinderdagverblijf0,3 km
BSO0,3 km
Alle voorzieningen in Transvaalbuurt West

Binnenkijken bij Krugerstraat 21 te Amsterdam

Meer meldingen in deze omgeving

Binnenkijken bij
Dinsdag 5-5-2026
Vaalrivierstraat 3B, 1091PC Amsterdam

Binnenkijken bij
Dinsdag 5-5-2026
Schalk Burgerstraat 112, 1091LM Amsterdam

Binnenkijken bij
Dinsdag 5-5-2026
Albert Luthulistraat 14C, 1091NV Amsterdam

Binnenkijken bij
Dinsdag 5-5-2026
De la Reijstraat 10A, 1091PA Amsterdam

Binnenkijken bij
Dinsdag 5-5-2026
President Steynplantsoen 11H, 1091NE Amsterdam

Binnenkijken bij
Dinsdag 5-5-2026
Krugerstraat 19C, 1091LC Amsterdam

112 melding
Zondag 3-5-2026 om 14:27
President Brandstraat, Amsterdam

112 melding
Zondag 3-5-2026 om 06:32
Kraaipanstraat, Amsterdam

Direct een e-mail ontvangen bij nieuwe meldingen in deze regio?

Meld je dan GRATIS aan voor de Oozo Alert service voor Transvaalbuurt West

Instellen

Meer nieuws in Transvaalbuurt West

Weten hoe eenvoudig het is om af te vallen? Zonder pillen en smeersels en zonder je in het zweet te werken!
Kijk op eenvoudig-afvallen.nl

© 2012 - 2026 OOZO.nl - info@oozo.nl - Gegevens verwijderen? | Disclaimer | Privacy statement