Woning Medemblikstraat 30 Amsterdam

Medemblikstraat 30, 1023XR Amsterdam

Ontvang updates voor Tuindorp Nieuwendam West

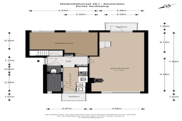
Het adres van deze woning uit 1949 is Medemblikstraat 30 te Amsterdam. Het pand heeft een oppervlakte van 87m² en heeft 4 kamers kamers waarvan 3 slaapkamers. De geschatte waarde van deze woning is € 275.000.

Bekijk alle woningen in Tuindorp Nieuwendam West

Gegevens van Bovenwoning (dubbel bovenhuis)

Bouwjaar
1949
Geschatte waarde
€ 275.000
Oppervlakte
87 m2
Inhoud
290 m3
Aantal kamers
4 kamers
Slaapkamers
3
Badkamers
1 badkamer en 1 apart toilet
Soort bouw
Bestaande bouw
Eigendomssituatie
Gemeentelijke erfpacht (einddatum erfpacht: 30-04-2061)
Ligging
Aan rustige weg en in woonwijk

Voorzieningen in de buurt

Boodschappen0,4 km
Grote supermarkt0,9 km
Cafetaria0,5 km
Restaurant0,2 km
Huisarts0,6 km
Ziekenhuis2,7 km
Kinderdagverblijf0,4 km
BSO0,7 km
Alle voorzieningen in Tuindorp Nieuwendam West

Binnenkijken bij Medemblikstraat 30 te Amsterdam

Meer meldingen in deze omgeving

112 melding
Zondag 28-12-2025 om 13:44
Wervershoofstraat, Amsterdam

112 melding
Zaterdag 27-12-2025 om 05:15
Nibbixwoudstraat, Amsterdam

Nieuw bedrijf
December 2025
Hoogwoudstraat 32, 1023XW Amsterdam

Nieuw bedrijf
December 2025
Medemblikstraat 13, 1023XM Amsterdam

Nieuw bedrijf
December 2025
Nieuwendammerstraat 69, 1023AC Amsterdam

112 melding
Maandag 8-12-2025 om 22:49
Enkhuizerstraat, Amsterdam

Binnenkijken bij
Vrijdag 5-12-2025
Medemblikstraat 281, 1023XR Amsterdam

Binnenkijken bij
Dinsdag 11-11-2025
Wervershoofstraat 30, 1023XJ Amsterdam

Direct een e-mail ontvangen bij nieuwe meldingen in deze regio?

Meld je dan GRATIS aan voor de Oozo Alert service voor Tuindorp Nieuwendam West

Instellen

Meer nieuws in Tuindorp Nieuwendam West

Weten hoe eenvoudig het is om af te vallen? Zonder pillen en smeersels en zonder je in het zweet te werken!
Kijk op eenvoudig-afvallen.nl

© 2012 - 2025 OOZO.nl - info@oozo.nl - Gegevens verwijderen? | Disclaimer | Privacy statement