Woning John Franklinstraat 67-1 Amsterdam

John Franklinstraat 67--1, 1056SZ Amsterdam

Ontvang updates voor John Franklinbuurt

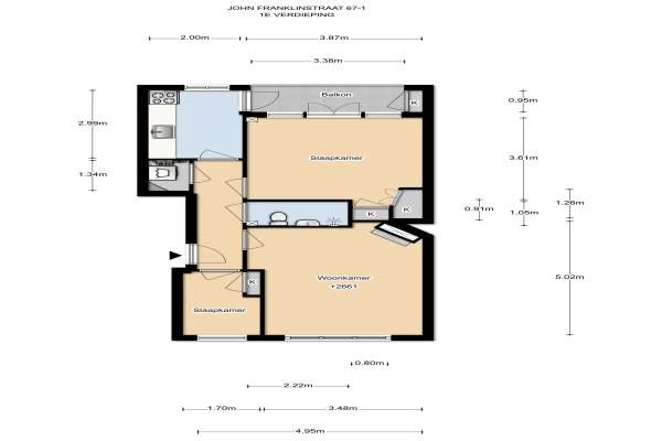
Het adres van deze woning uit 1932 is John Franklinstraat 67-1 te Amsterdam. Het pand heeft een oppervlakte van 54m² en heeft 3 kamers kamers waarvan 2 slaapkamers. De geschatte waarde van deze woning is € 250.000.

Bekijk alle woningen in John Franklinbuurt

Gegevens van Bovenwoning (appartement)

Bouwjaar
1932
Geschatte waarde
€ 250.000
Oppervlakte
54 m2
Inhoud
194 m3
Aantal kamers
3 kamers
Slaapkamers
2
Badkamers
1 badkamer
Soort bouw
Bestaande bouw
Eigendomssituatie
Volle eigendom
Ligging
Aan rustige weg en in woonwijk

Voorzieningen in de buurt

Boodschappen0,2 km
Grote supermarkt0,3 km
Cafetaria0,1 km
Restaurant0,2 km
Huisarts0,4 km
Ziekenhuis1,3 km
Kinderdagverblijf0,2 km
BSO0,1 km
Alle voorzieningen in John Franklinbuurt

Binnenkijken bij John Franklinstraat 67-1 te Amsterdam

Meer meldingen in deze omgeving

Onroerend goed
Woensdag 29-10-2025
Marco Polostraat 251- 255, 1056DM Amsterdam

Nieuw bedrijf
Oktober 2025
Jan van Galenstraat 2091, 1056BV Amsterdam

Nieuw bedrijf
Oktober 2025
John Franklinstraat 73H, 1056TA Amsterdam

Nieuw bedrijf
Oktober 2025
Marco Polostraat 2811, 1056DN Amsterdam

112 melding
Dinsdag 28-10-2025 om 05:34
John Franklinstraat, Amsterdam

112 melding
Dinsdag 28-10-2025 om 05:34
John Franklinstraat, Amsterdam

112 melding
Donderdag 16-10-2025 om 13:31
John Franklinstraat, Amsterdam

Nieuw bedrijf
Oktober 2025
John Franklinstraat 812, 1056TB Amsterdam

Direct een e-mail ontvangen bij nieuwe meldingen in deze regio?

Meld je dan GRATIS aan voor de Oozo Alert service voor John Franklinbuurt

Instellen

Meer nieuws in John Franklinbuurt

Weten hoe eenvoudig het is om af te vallen? Zonder pillen en smeersels en zonder je in het zweet te werken!
Kijk op eenvoudig-afvallen.nl

© 2012 - 2025 OOZO.nl - info@oozo.nl - Gegevens verwijderen? | Disclaimer | Privacy statement