Woning Jacob van Lennepstraat 70- 1 Amsterdam

Jacob van Lennepstraat 70- 1, 1053HM Amsterdam

Ontvang updates voor Da Costabuurt Zuid

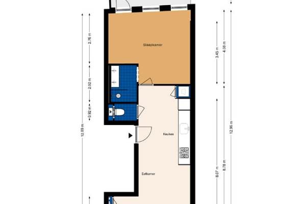
Het adres van deze woning uit 1883 is Jacob van Lennepstraat 70- 1 te Amsterdam. Het pand heeft een oppervlakte van 52m² en heeft 2 kamers kamers waarvan 1 slaapkamers. De geschatte waarde van deze woning is € 475.000.

Bekijk alle woningen in Da Costabuurt Zuid

Gegevens van Bovenwoning (appartement)

Bouwjaar
1883
Geschatte waarde
€ 475.000
Oppervlakte
52 m2
Inhoud
150 m3
Aantal kamers
2 kamers
Slaapkamers
1
Badkamers
1 badkamer en 1 apart toilet
Soort bouw
Bestaande bouw
Eigendomssituatie
Volle eigendom
Ligging
Aan rustige weg en in woonwijk

Voorzieningen in de buurt

Boodschappen0,1 km
Grote supermarkt0,2 km
Cafetaria0,1 km
Restaurant0,1 km
Huisarts0,2 km
Ziekenhuis1,3 km
Kinderdagverblijf0,2 km
BSO0,4 km
Alle voorzieningen in Da Costabuurt Zuid

Binnenkijken bij Jacob van Lennepstraat 70- 1 te Amsterdam

Meer meldingen in deze omgeving

Nieuw bedrijf
Oktober 2025
Jacob van Lennepstraat 722, 1053HM Amsterdam

Nieuw bedrijf
Oktober 2025
Da Costastraat 1313L, 1053ZL Amsterdam

Binnenkijken bij
Woensdag 1-10-2025
Bilderdijkstraat 1753A, 1053KR Amsterdam

Binnenkijken bij
Vrijdag 26-9-2025
Kinkerstraat 51A1, 1053DE Amsterdam

Binnenkijken bij
Donderdag 25-9-2025
Bilderdijkkade 894, 1053VL Amsterdam

Binnenkijken bij
Woensdag 24-9-2025
Jacob van Lennepstraat 63, 1053HG Amsterdam

Binnenkijken bij
Woensdag 24-9-2025
Bilderdijkstraat 1883, 1053LE Amsterdam

Binnenkijken bij
Dinsdag 23-9-2025
Bilderdijkkade 75B, 1053VK Amsterdam

Direct een e-mail ontvangen bij nieuwe meldingen in deze regio?

Meld je dan GRATIS aan voor de Oozo Alert service voor Da Costabuurt Zuid

Instellen

Meer nieuws in Da Costabuurt Zuid

Weten hoe eenvoudig het is om af te vallen? Zonder pillen en smeersels en zonder je in het zweet te werken!
Kijk op eenvoudig-afvallen.nl

© 2012 - 2025 OOZO.nl - info@oozo.nl - Gegevens verwijderen? | Disclaimer | Privacy statement