Woning Latherusstraat 96 Amsterdam

Latherusstraat 96, 1032EE Amsterdam

Ontvang updates voor Bloemenbuurt Zuid

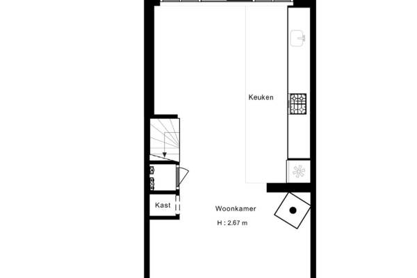
Het adres van deze woning uit 1931 is Latherusstraat 96 te Amsterdam. Het pand heeft een oppervlakte van 79m² en een perceeloppervlakte van 73m² en heeft 5 kamers kamers waarvan 3 slaapkamers. De geschatte waarde van deze woning is € 600.000.

Bekijk alle woningen in Bloemenbuurt Zuid

Gegevens van Eengezinswoning, tussenwoning

Bouwjaar
1931
Geschatte waarde
€ 600.000
Oppervlakte
79 m2
Inhoud
197 m3
Aantal kamers
5 kamers
Slaapkamers
3
Badkamers
1 badkamer en 1 apart toilet
Soort bouw
Bestaande bouw
Eigendomssituatie
Gemeentelijk eigendom belast met erfpacht
Ligging
Aan rustige weg en in woonwijk
Tuin
Achtertuin en voortuin
Achtertuin
17 m² (4,26 meter diep en 4 meter breed)

Voorzieningen in de buurt

Boodschappen0,2 km
Grote supermarkt0,3 km
Cafetaria0,3 km
Restaurant0,2 km
Huisarts0,4 km
Ziekenhuis1,9 km
Kinderdagverblijf0,2 km
BSO0,3 km
Alle voorzieningen in Bloemenbuurt Zuid

Binnenkijken bij Latherusstraat 96 te Amsterdam

Meer meldingen in deze omgeving

112 melding
Maandag 6-10-2025 om 12:26
Ribesstraat, Amsterdam

112 melding
Zondag 28-9-2025 om 13:23
Mosstraat, 1032JW Amsterdam

Binnenkijken bij
Zaterdag 27-9-2025
Berberisstraat 351, 1032EK Amsterdam

Binnenkijken bij
Zaterdag 27-9-2025
Latherusstraat 9H, 1032CR Amsterdam

112 melding
Vrijdag 26-9-2025 om 05:10
Clematisstraat, Amsterdam

Onroerend goed
Vrijdag 26-9-2025
Mosplein 28-H, 1032JX Amsterdam

Binnenkijken bij
Maandag 22-9-2025
Azaleastraat 25, 1032BV Amsterdam

112 melding
Zaterdag 20-9-2025 om 14:58
Duindoornplein, Amsterdam

Direct een e-mail ontvangen bij nieuwe meldingen in deze regio?

Meld je dan GRATIS aan voor de Oozo Alert service voor Bloemenbuurt Zuid

Instellen

Meer nieuws in Bloemenbuurt Zuid

Weten hoe eenvoudig het is om af te vallen? Zonder pillen en smeersels en zonder je in het zweet te werken!
Kijk op eenvoudig-afvallen.nl

© 2012 - 2025 OOZO.nl - info@oozo.nl - Gegevens verwijderen? | Disclaimer | Privacy statement