Woning Jisperveldstraat 263 Amsterdam

Jisperveldstraat 263, 1024AM Amsterdam

Ontvang updates voor Baanakkerspark Noord

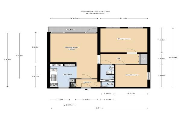
Het adres van deze woning uit 1968 is Jisperveldstraat 263 te Amsterdam. Het pand heeft een oppervlakte van 85m² en heeft 3 kamers kamers waarvan 2 slaapkamers. De geschatte waarde van deze woning is € 175.000.

Bekijk alle woningen in Baanakkerspark Noord

Gegevens van Galerijflat (appartement)

Bouwjaar
1968
Geschatte waarde
€ 175.000
Oppervlakte
85 m2
Inhoud
272 m3
Aantal kamers
3 kamers
Slaapkamers
2
Badkamers
1 badkamer en 1 apart toilet
Soort bouw
Bestaande bouw
Eigendomssituatie
Gemeentelijk eigendom belast met erfpacht (einddatum erfpacht: 15-04-2041)
Ligging
Aan park, in woonwijk, vrij uitzicht en in bosrijke omgeving

Voorzieningen in de buurt

Boodschappen0,7 km
Grote supermarkt0,4 km
Cafetaria0,9 km
Restaurant0,9 km
Huisarts0,9 km
Ziekenhuis2,6 km
Kinderdagverblijf0,5 km
BSO0,6 km
Alle voorzieningen in Baanakkerspark Noord

Binnenkijken bij Jisperveldstraat 263 te Amsterdam

Meer meldingen in deze omgeving

Nieuw bedrijf
December 2025
Jisperveldstraat 283, 1024AN Amsterdam

Nieuw bedrijf
November 2025
Jisperveldstraat 486, 1024AZ Amsterdam

Nieuw bedrijf
November 2025
Jisperveldstraat 530, 1024BA Amsterdam

Binnenkijken bij
Woensdag 29-10-2025
Jisperveldstraat 251, 1024AM Amsterdam

Nieuw bedrijf
Oktober 2025
Jisperveldstraat 600, 1024BD Amsterdam

Binnenkijken bij
Maandag 22-9-2025
Jisperveldstraat 394, 1024AT Amsterdam

Binnenkijken bij
Vrijdag 19-9-2025
Jisperveldstraat 373, 1024AT Amsterdam

Binnenkijken bij
Vrijdag 19-9-2025
Jisperveldstraat 545, 1024BB Amsterdam

Direct een e-mail ontvangen bij nieuwe meldingen in deze regio?

Meld je dan GRATIS aan voor de Oozo Alert service voor Baanakkerspark Noord

Instellen

Meer nieuws in Baanakkerspark Noord

Weten hoe eenvoudig het is om af te vallen? Zonder pillen en smeersels en zonder je in het zweet te werken!
Kijk op eenvoudig-afvallen.nl

© 2012 - 2025 OOZO.nl - info@oozo.nl - Gegevens verwijderen? | Disclaimer | Privacy statement