Woning Jisperveldstraat 125 Amsterdam

Jisperveldstraat 125, 1024AE Amsterdam

Ontvang updates voor Baanakkerspark Zuid

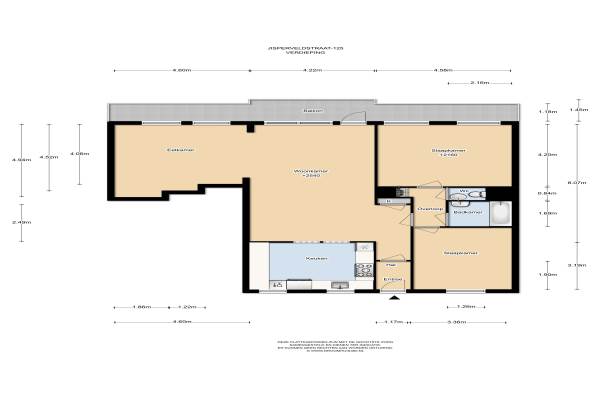
Het adres van deze woning uit 1968 is Jisperveldstraat 125 te Amsterdam. Het pand heeft een oppervlakte van 120m² en heeft 3 kamers kamers waarvan 2 slaapkamers. De geschatte waarde van deze woning is € 275.000.

Bekijk alle woningen in Baanakkerspark Zuid

Gegevens van Galerijflat (appartement)

Bouwjaar
1968
Geschatte waarde
€ 275.000
Oppervlakte
120 m2
Inhoud
355 m3
Aantal kamers
3 kamers
Slaapkamers
2
Badkamers
1 badkamer en 1 apart toilet
Soort bouw
Bestaande bouw
Eigendomssituatie
Gemeentelijk eigendom belast met erfpacht (einddatum erfpacht: 30-06-2039)
Ligging
Aan park, aan rustige weg, in woonwijk en beschutte ligging

Voorzieningen in de buurt

Boodschappen0,5 km
Grote supermarkt0,5 km
Cafetaria0,7 km
Restaurant0,7 km
Huisarts0,7 km
Ziekenhuis2,5 km
Kinderdagverblijf0,5 km
BSO0,5 km
Alle voorzieningen in Baanakkerspark Zuid

Binnenkijken bij Jisperveldstraat 125 te Amsterdam

Meer meldingen in deze omgeving

Binnenkijken bij
Dinsdag 25-11-2025
Jisperveldstraat 151, 1024AH Amsterdam

112 melding
Dinsdag 28-10-2025 om 11:14
Ilperveldstraat, Amsterdam

112 melding
Maandag 27-10-2025 om 19:37
Ilperveldstraat, Amsterdam

Nieuw bedrijf
Oktober 2025
Ilperveldstraat 142, 1024PL Amsterdam

Binnenkijken bij
Dinsdag 14-10-2025
Jisperveldstraat 143, 1024AG Amsterdam

Binnenkijken bij
Donderdag 9-10-2025
Ilperveldstraat 44, 1024PH Amsterdam

112 melding
Vrijdag 26-9-2025 om 17:36
Ilperveldstraat, Amsterdam

Nieuw bedrijf
September 2025
Ilperveldstraat 136, 1024PL Amsterdam

Direct een e-mail ontvangen bij nieuwe meldingen in deze regio?

Meld je dan GRATIS aan voor de Oozo Alert service voor Baanakkerspark Zuid

Instellen

Meer nieuws in Baanakkerspark Zuid

Weten hoe eenvoudig het is om af te vallen? Zonder pillen en smeersels en zonder je in het zweet te werken!
Kijk op eenvoudig-afvallen.nl

© 2012 - 2025 OOZO.nl - info@oozo.nl - Gegevens verwijderen? | Disclaimer | Privacy statement