Woning Volendammerweg 206 Amsterdam

Volendammerweg 206, 1024JR Amsterdam

Ontvang updates voor Markengouw Zuid

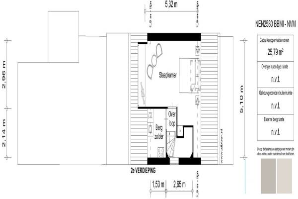
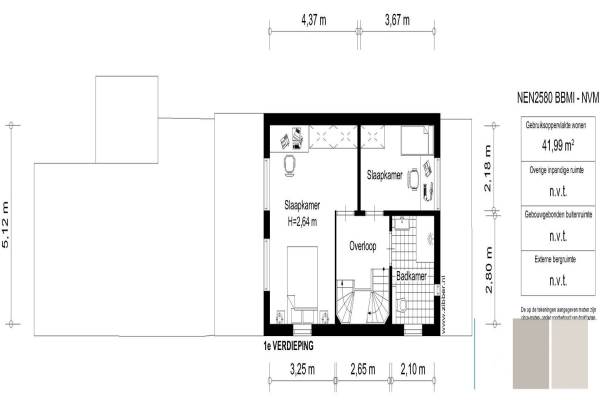
Het adres van deze woning uit 2016 is Volendammerweg 206 te Amsterdam. Het pand heeft een oppervlakte van 121m² en een perceeloppervlakte van 124m² en heeft 4 kamers kamers waarvan 3 slaapkamers. De geschatte waarde van deze woning is € 425.000.

Bekijk alle woningen in Markengouw Zuid

Gegevens van Eengezinswoning, hoekwoning

Bouwjaar
2016
Geschatte waarde
€ 425.000
Oppervlakte
121 m2
Inhoud
470 m3
Aantal kamers
4 kamers
Slaapkamers
3
Badkamers
1 badkamer en 1 apart toilet
Soort bouw
Bestaande bouw
Eigendomssituatie
Erfpacht
Ligging
Aan rustige weg en in woonwijk
Tuin
Achtertuin
Achtertuin
43 m² (8,5m diep en 5,1m breed)

Voorzieningen in de buurt

Boodschappen0,7 km
Grote supermarkt0,7 km
Cafetaria0,7 km
Restaurant0,7 km
Huisarts0,5 km
Ziekenhuis3,7 km
Kinderdagverblijf0,4 km
BSO0,4 km
Alle voorzieningen in Markengouw Zuid

Binnenkijken bij Volendammerweg 206 te Amsterdam

Meer meldingen in deze omgeving

Nieuw bedrijf
December 2025
Waalenburgsingel 145, 1024EM Amsterdam

Nieuw bedrijf
December 2025
Hilversumstraat 330B, 1024MB Amsterdam

112 melding
Maandag 24-11-2025 om 21:33
Hilverbeekstraat, 1024KL Amsterdam

112 melding
Maandag 24-11-2025 om 21:33
Hilverbeekstraat, 1024KL Amsterdam

112 melding
Maandag 24-11-2025 om 21:29
Hilverbeekstraat, 1024KL Amsterdam

112 melding
Maandag 24-11-2025 om 21:17
Hilverbeekstraat, 1024KL Amsterdam

112 melding
Zaterdag 22-11-2025 om 12:47
Westerduinenstraat, Amsterdam

Nieuw bedrijf
November 2025
Hilversumstraat 1, 1024JV Amsterdam

Direct een e-mail ontvangen bij nieuwe meldingen in deze regio?

Meld je dan GRATIS aan voor de Oozo Alert service voor Markengouw Zuid

Instellen

Meer nieuws in Markengouw Zuid

Weten hoe eenvoudig het is om af te vallen? Zonder pillen en smeersels en zonder je in het zweet te werken!
Kijk op eenvoudig-afvallen.nl

© 2012 - 2025 OOZO.nl - info@oozo.nl - Gegevens verwijderen? | Disclaimer | Privacy statement