Woning Plantage Doklaan 35 Amsterdam

Plantage Doklaan 35, 1018CM Amsterdam

Ontvang updates voor Plantage

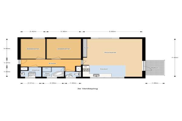
Het adres van deze woning uit 1989 is Plantage Doklaan 35 te Amsterdam. Het pand heeft een oppervlakte van 87m² en heeft 3 kamers kamers waarvan 2 slaapkamers. De geschatte waarde van deze woning is € 485.000.

Bekijk alle woningen in Plantage

Gegevens van Bovenwoning (appartement)

Bouwjaar
1989
Geschatte waarde
€ 485.000
Oppervlakte
87 m2
Inhoud
271 m3
Aantal kamers
3 kamers
Slaapkamers
2
Soort bouw
Bestaande bouw
Eigendomssituatie
Volle eigendom
Ligging
Aan rustige weg en in woonwijk

Voorzieningen in de buurt

Boodschappen0,3 km
Grote supermarkt0,5 km
Cafetaria0,2 km
Restaurant0,2 km
Huisarts0,4 km
Ziekenhuis1,4 km
Kinderdagverblijf0,2 km
BSO0,2 km
Alle voorzieningen in Plantage

Binnenkijken bij Plantage Doklaan 35 te Amsterdam

Meer meldingen in deze omgeving

112 melding
Dinsdag 23-12-2025 om 15:29
Plantage Middenlaan, Amsterdam

112 melding
Maandag 22-12-2025 om 16:32
Plantage Kerklaan, Amsterdam

112 melding
Zondag 21-12-2025 om 14:28
Plantage Parklaan, Amsterdam

112 melding
Vrijdag 19-12-2025 om 11:51
Plantage Muidergracht, Amsterdam

112 melding
Maandag 15-12-2025 om 03:39
Plantage Kerklaan, Amsterdam

112 melding
Zaterdag 13-12-2025 om 22:29
Plantage Westermanlaan, 1018DK Amsterdam

112 melding
Zaterdag 13-12-2025 om 12:05
Plantage Lepellaan, Amsterdam

112 melding
Zaterdag 13-12-2025 om 01:20
Plantage Parklaan, Amsterdam

Direct een e-mail ontvangen bij nieuwe meldingen in deze regio?

Meld je dan GRATIS aan voor de Oozo Alert service voor Plantage

Instellen

Meer nieuws in Plantage

Weten hoe eenvoudig het is om af te vallen? Zonder pillen en smeersels en zonder je in het zweet te werken!
Kijk op eenvoudig-afvallen.nl

© 2012 - 2025 OOZO.nl - info@oozo.nl - Gegevens verwijderen? | Disclaimer | Privacy statement