Woning Sarphatistraat 175 Amsterdam

Sarphatistraat 175, 1018GE Amsterdam

Ontvang updates voor Sarphatistrook

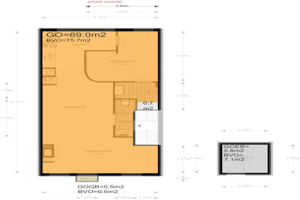
Het adres van deze woning is Sarphatistraat 175 te Amsterdam. Het pand heeft een oppervlakte van 69m² en heeft 3 kamers kamers waarvan 1 slaapkamers. De geschatte waarde van deze woning is € 459.000.

Bekijk alle woningen in Sarphatistrook

Gegevens van Tussenverdieping (appartement)

Bouwjaar
Voor 1906
Geschatte waarde
€ 459.000
Oppervlakte
69 m2
Inhoud
226 m3
Aantal kamers
3 kamers
Slaapkamers
1
Soort bouw
Bestaande bouw
Ligging
In centrum

Voorzieningen in de buurt

Boodschappen0,2 km
Grote supermarkt0,3 km
Cafetaria0,3 km
Restaurant0,2 km
Huisarts0,3 km
Ziekenhuis0,9 km
Kinderdagverblijf0,4 km
BSO0,4 km
Alle voorzieningen in Sarphatistrook

Binnenkijken bij Sarphatistraat 175 te Amsterdam

Meer meldingen in deze omgeving

Binnenkijken bij
Donderdag 22-1-2026
Sarphatistraat 43A, 1018EW Amsterdam

Nieuw bedrijf
Januari 2026
Sarphatistraat 370unit A16, 1018GW Amsterdam

Nieuw bedrijf
Januari 2026
Sarphatistraat 370, 1018GW Amsterdam

Nieuw bedrijf
Januari 2026
Amstel 1553, 1018ER Amsterdam

Binnenkijken bij
Woensdag 21-1-2026
Spinozastraat 37D, 1018HH Amsterdam

Nieuw bedrijf
Januari 2026
Sarphatistraat 801, 1018GS Amsterdam

Nieuw bedrijf
Januari 2026
Sarphatistraat 135F, 1018GD Amsterdam

Nieuw bedrijf
Januari 2026
Sarphatistraat 34C, 1018GM Amsterdam

Direct een e-mail ontvangen bij nieuwe meldingen in deze regio?

Meld je dan GRATIS aan voor de Oozo Alert service voor Sarphatistrook

Instellen

Meer nieuws in Sarphatistrook

Weten hoe eenvoudig het is om af te vallen? Zonder pillen en smeersels en zonder je in het zweet te werken!
Kijk op eenvoudig-afvallen.nl

© 2012 - 2026 OOZO.nl - info@oozo.nl - Gegevens verwijderen? | Disclaimer | Privacy statement