Woning Crynssenstraat 62I Amsterdam

Crynssenstraat 62I, 1058XZ Amsterdam

Ontvang updates voor Paramariboplein e.o.

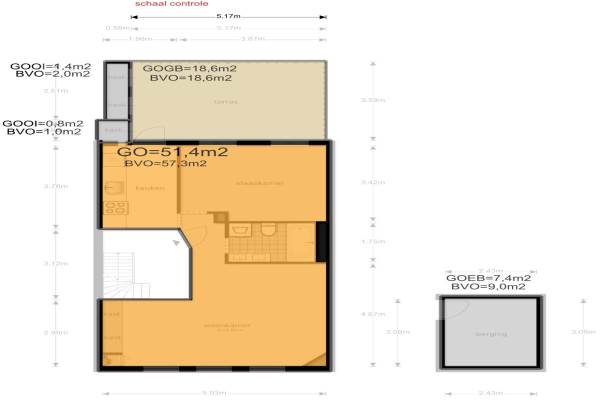
Het adres van deze woning uit 1927 is Crynssenstraat 62I te Amsterdam. Het pand heeft een oppervlakte van 51m² en heeft 2 kamers kamers waarvan 1 slaapkamers. De geschatte waarde van deze woning is € 275.000.

Bekijk alle woningen in Paramariboplein e.o.

Gegevens van Bovenwoning

Bouwjaar
1927
Geschatte waarde
€ 275.000
Oppervlakte
51 m2
Inhoud
177 m3
Aantal kamers
2 kamers
Slaapkamers
1
Badkamers
1 badkamer
Soort bouw
Bestaande bouw
Eigendomssituatie
Volle eigendom
Ligging
In woonwijk

Voorzieningen in de buurt

Boodschappen0,2 km
Grote supermarkt0,4 km
Cafetaria0,2 km
Restaurant0,2 km
Huisarts0,3 km
Ziekenhuis2,3 km
Kinderdagverblijf0,1 km
BSO0,4 km
Alle voorzieningen in Paramariboplein e.o.

Binnenkijken bij Crynssenstraat 62I te Amsterdam

Meer meldingen in deze omgeving

Nieuw bedrijf
November 2025
Baarsjesweg 288H, 1058AG Amsterdam

Nieuw bedrijf
November 2025
Paramaribostraat 421, 1058VL Amsterdam

Nieuw bedrijf
November 2025
Baarsjesweg 296H, 1058AG Amsterdam

112 melding
Woensdag 26-11-2025 om 18:22
Paramaribostraat, Amsterdam

112 melding
Woensdag 26-11-2025 om 17:22
Paramaribostraat, Amsterdam

112 melding
Woensdag 26-11-2025 om 17:21
Paramaribostraat, Amsterdam

112 melding
Dinsdag 25-11-2025 om 17:21
Paramariboplein, Amsterdam

Binnenkijken bij
Dinsdag 25-11-2025
Hoofdweg 782, 1058BE Amsterdam

Direct een e-mail ontvangen bij nieuwe meldingen in deze regio?

Meld je dan GRATIS aan voor de Oozo Alert service voor Paramariboplein e.o.

Instellen

Meer nieuws in Paramariboplein e.o.

Weten hoe eenvoudig het is om af te vallen? Zonder pillen en smeersels en zonder je in het zweet te werken!
Kijk op eenvoudig-afvallen.nl

© 2012 - 2025 OOZO.nl - info@oozo.nl - Gegevens verwijderen? | Disclaimer | Privacy statement