Woning Van Walbeeckstraat 105 Amsterdam

Van Walbeeckstraat 105, 1058CN Amsterdam

Ontvang updates voor Postjeskade e.o.

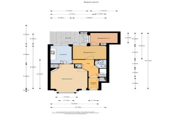
Het adres van deze woning uit 1935 is Van Walbeeckstraat 105 te Amsterdam. Het pand heeft een oppervlakte van 66m² en heeft 3 kamers kamers waarvan 2 slaapkamers. De geschatte waarde van deze woning is € 350.000.

Bekijk alle woningen in Postjeskade e.o.

Gegevens van Benedenwoning (appartement)

Bouwjaar
1935
Geschatte waarde
€ 350.000
Oppervlakte
66 m2
Inhoud
165 m3
Aantal kamers
3 kamers
Slaapkamers
2
Badkamers
1 badkamer
Soort bouw
Bestaande bouw
Eigendomssituatie
Erfpacht (einddatum erfpacht: 31-05-2059)
Ligging
Aan rustige weg, beschutte ligging en in woonwijk
Tuin
Achtertuin
Achtertuin
8 m² (2m diep en 4,1m breed)

Voorzieningen in de buurt

Boodschappen0,2 km
Grote supermarkt0,5 km
Cafetaria0,4 km
Restaurant0,3 km
Huisarts0,5 km
Ziekenhuis2,3 km
Kinderdagverblijf0,2 km
BSO0,3 km
Alle voorzieningen in Postjeskade e.o.

Binnenkijken bij Van Walbeeckstraat 105 te Amsterdam

Meer meldingen in deze omgeving

Binnenkijken bij
Woensdag 18-2-2026
Postjeskade 65B, 1058DH Amsterdam

Nieuw bedrijf
Februari 2026
Van Walbeeckstraat 472, 1058CJ Amsterdam

Nieuw bedrijf
Februari 2026
Antillenstraat 71, 1058GW Amsterdam

Nieuw bedrijf
Februari 2026
Hoofdweg 39H, 1058AW Amsterdam

Binnenkijken bij
Zondag 1-2-2026
Van Walbeeckstraat 862, 1058CX Amsterdam

Binnenkijken bij
Zondag 1-2-2026
Curaçaostraat 732, 1058BP Amsterdam

112 melding
Vrijdag 23-1-2026 om 15:15
Curaçaostraat, Amsterdam

Binnenkijken bij
Woensdag 21-1-2026
Antillenstraat 152, 1058GX Amsterdam

Direct een e-mail ontvangen bij nieuwe meldingen in deze regio?

Meld je dan GRATIS aan voor de Oozo Alert service voor Postjeskade e.o.

Instellen

Meer nieuws in Postjeskade e.o.

Weten hoe eenvoudig het is om af te vallen? Zonder pillen en smeersels en zonder je in het zweet te werken!
Kijk op eenvoudig-afvallen.nl

© 2012 - 2026 OOZO.nl - info@oozo.nl - Gegevens verwijderen? | Disclaimer | Privacy statement