Woning Wittgensteinlaan 2 Amsterdam

Wittgensteinlaan 2, 1062KA Amsterdam

Ontvang updates voor Koningin Wilhelminaplein

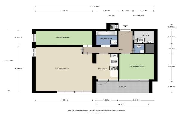
Het adres van deze woning uit 1991 is Wittgensteinlaan 2 te Amsterdam. Het pand heeft een oppervlakte van 91m² en heeft 3 kamers kamers waarvan 2 slaapkamers. De geschatte waarde van deze woning is € 335.000.

Bekijk alle woningen in Koningin Wilhelminaplein

Gegevens van Portiekflat (appartement)

Bouwjaar
1991
Geschatte waarde
€ 335.000
Oppervlakte
91 m2
Inhoud
284 m3
Aantal kamers
3 kamers
Slaapkamers
2
Badkamers
1 badkamer en 1 apart toilet
Soort bouw
Bestaande bouw
Eigendomssituatie
Gemeentelijk eigendom belast met erfpacht
Ligging
Aan park en aan rustige weg

Voorzieningen in de buurt

Boodschappen0,4 km
Grote supermarkt0,7 km
Cafetaria0,3 km
Restaurant0,3 km
Huisarts0,8 km
Ziekenhuis2,2 km
Kinderdagverblijf0,3 km
BSO0,4 km
Alle voorzieningen in Koningin Wilhelminaplein

Binnenkijken bij Wittgensteinlaan 2 te Amsterdam

Meer meldingen in deze omgeving

Nieuw bedrijf
November 2025
Koningin Wilhelminaplein 1, 1062HG Amsterdam

Nieuw bedrijf
November 2025
Koningin Wilhelminaplein 2917, 1062HJ Amsterdam

Nieuw bedrijf
November 2025
Wittgensteinlaan 333, 1062KJ Amsterdam

Binnenkijken bij
Zaterdag 15-11-2025
Carnapstraat 165, 1062KZ Amsterdam

Binnenkijken bij
Vrijdag 14-11-2025
Wittgensteinlaan 44, 1062KA Amsterdam

Nieuw bedrijf
November 2025
Carnapstraat 24A, 1062KT Amsterdam

Nieuw bedrijf
November 2025
Carnapstraat 143, 1062KZ Amsterdam

Binnenkijken bij
Dinsdag 11-11-2025
Carnapstraat 139, 1062KX Amsterdam

Direct een e-mail ontvangen bij nieuwe meldingen in deze regio?

Meld je dan GRATIS aan voor de Oozo Alert service voor Koningin Wilhelminaplein

Instellen

Meer nieuws in Koningin Wilhelminaplein

Weten hoe eenvoudig het is om af te vallen? Zonder pillen en smeersels en zonder je in het zweet te werken!
Kijk op eenvoudig-afvallen.nl

© 2012 - 2025 OOZO.nl - info@oozo.nl - Gegevens verwijderen? | Disclaimer | Privacy statement