Woning Valeriusstraat 125II Amsterdam

Valeriusstraat 125II, 1075ES Amsterdam

Ontvang updates voor Valeriusbuurt Oost

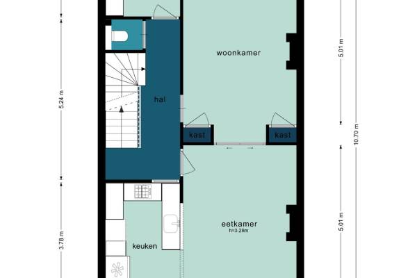
Het adres van deze woning uit 1910 is Valeriusstraat 125II te Amsterdam. Het pand heeft een oppervlakte van 183m² en heeft 8 kamers kamers waarvan 5 slaapkamers. De geschatte waarde van deze woning is € 1.630.000.

Bekijk alle woningen in Valeriusbuurt Oost

Gegevens van Bovenwoning (appartement)

Bouwjaar
1910
Geschatte waarde
€ 1.630.000
Oppervlakte
183 m2
Inhoud
718 m3
Aantal kamers
8 kamers
Slaapkamers
5
Badkamers
1 badkamer en 1 apart toilet
Soort bouw
Bestaande bouw
Eigendomssituatie
Volle eigendom
Ligging
Aan rustige weg
Tuin
Zonneterras

Voorzieningen in de buurt

Boodschappen0,2 km
Grote supermarkt0,3 km
Cafetaria0,3 km
Restaurant0,1 km
Huisarts0,3 km
Ziekenhuis2,6 km
Kinderdagverblijf0,2 km
BSO0,4 km
Alle voorzieningen in Valeriusbuurt Oost

Binnenkijken bij Valeriusstraat 125II te Amsterdam

Meer meldingen in deze omgeving

Onroerend goed
Zaterdag 18-4-2026
De Lairessestraat 137- 139, 1075HJ Amsterdam

Nieuw bedrijf
April 2026
Jan van Goyenkade 16, 1075HR Amsterdam

112 melding
Donderdag 16-4-2026 om 14:33
Lassusstraat, 1075GV Amsterdam

Binnenkijken bij
Donderdag 16-4-2026
Johannes Verhulststraat 210A, 1075HG Amsterdam

112 melding
Dinsdag 14-4-2026 om 15:01
Dufaystraat, Amsterdam

Binnenkijken bij
Maandag 13-4-2026
Koninginneweg 127H, 1075CL Amsterdam

Binnenkijken bij
Maandag 13-4-2026
Johannes Verhulststraat 189H, 1075GZ Amsterdam

Nieuw bedrijf
April 2026
Johannes Verhulststraat 157H, 1075GW Amsterdam

Direct een e-mail ontvangen bij nieuwe meldingen in deze regio?

Meld je dan GRATIS aan voor de Oozo Alert service voor Valeriusbuurt Oost

Instellen

Meer nieuws in Valeriusbuurt Oost

Weten hoe eenvoudig het is om af te vallen? Zonder pillen en smeersels en zonder je in het zweet te werken!
Kijk op eenvoudig-afvallen.nl

© 2012 - 2026 OOZO.nl - info@oozo.nl - Gegevens verwijderen? | Disclaimer | Privacy statement