Woning Pieter Lastmankade 6 Amsterdam

Pieter Lastmankade 6, 1075KJ Amsterdam

Ontvang updates voor Valeriusbuurt West

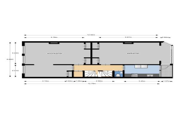
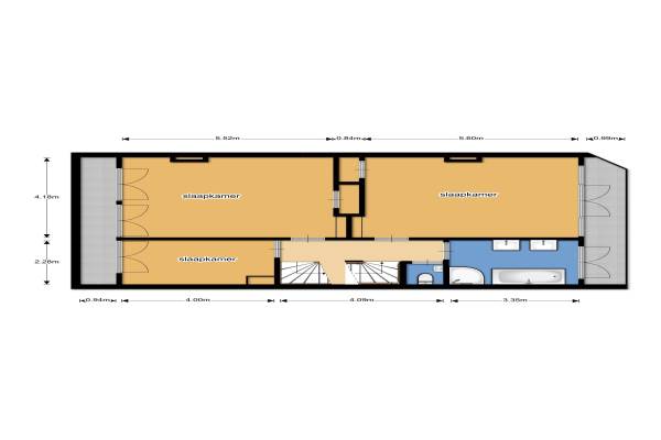
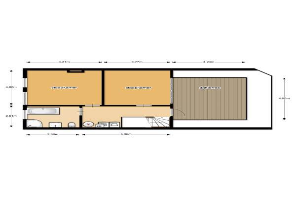
Het adres van deze woning uit 1925 is Pieter Lastmankade 6 te Amsterdam. Het pand heeft een oppervlakte van 225m² en heeft 8 kamers kamers waarvan 6 slaapkamers. De geschatte waarde van deze woning is € 1.500.000.

Bekijk alle woningen in Valeriusbuurt West

Gegevens van Bovenwoning (appartement)

Bouwjaar
1925
Geschatte waarde
€ 1.500.000
Oppervlakte
225 m2
Inhoud
751 m3
Aantal kamers
8 kamers
Slaapkamers
6
Badkamers
2 badkamers en 2 aparte toiletten
Soort bouw
Bestaande bouw
Eigendomssituatie
Gemeentelijke erfpacht (einddatum erfpacht: 01-12-2048)
Ligging
Aan rustige weg, in woonwijk, vrij uitzicht en aan vaarwater
Tuin
Zonneterras

Voorzieningen in de buurt

Boodschappen0,1 km
Grote supermarkt0,2 km
Cafetaria0,1 km
Restaurant0,1 km
Huisarts0,3 km
Ziekenhuis2,2 km
Kinderdagverblijf0,2 km
BSO0,3 km
Alle voorzieningen in Valeriusbuurt West

Binnenkijken bij Pieter Lastmankade 6 te Amsterdam

Meer meldingen in deze omgeving

Binnenkijken bij
Vrijdag 28-11-2025
Valeriusstraat 2502, 1075GL Amsterdam

Binnenkijken bij
Vrijdag 28-11-2025
Okeghemstraat 36H, 1075PP Amsterdam

Nieuw bedrijf
November 2025
Valeriusstraat 220H, 1075GK Amsterdam

Nieuw bedrijf
November 2025
Lomanstraat 88H, 1075RG Amsterdam

Binnenkijken bij
Dinsdag 25-11-2025
Cornelis Krusemanstraat 233, 1075NC Amsterdam

Nieuw bedrijf
November 2025
Cornelis Krusemanstraat 333, 1075ND Amsterdam

Nieuw bedrijf
November 2025
Koninginneweg 1592, 1075CN Amsterdam

Binnenkijken bij
Woensdag 19-11-2025
Amstelveenseweg 1592, 1075XA Amsterdam

Direct een e-mail ontvangen bij nieuwe meldingen in deze regio?

Meld je dan GRATIS aan voor de Oozo Alert service voor Valeriusbuurt West

Instellen

Meer nieuws in Valeriusbuurt West

Weten hoe eenvoudig het is om af te vallen? Zonder pillen en smeersels en zonder je in het zweet te werken!
Kijk op eenvoudig-afvallen.nl

© 2012 - 2025 OOZO.nl - info@oozo.nl - Gegevens verwijderen? | Disclaimer | Privacy statement