Woning Lomanstraat 95 Amsterdam

Lomanstraat 95, 1075PZ Amsterdam

Ontvang updates voor Valeriusbuurt West

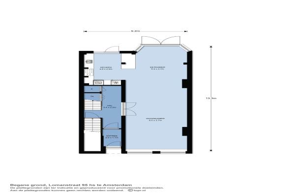
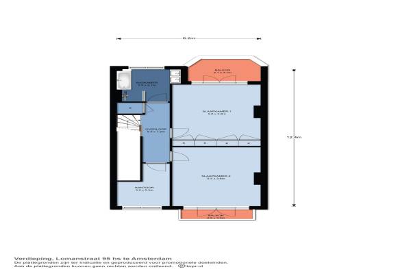
Het adres van deze woning uit 1913 is Lomanstraat 95 te Amsterdam. Het pand heeft een oppervlakte van 140m² en heeft 5 kamers kamers waarvan 4 slaapkamers. De geschatte waarde van deze woning is € 1.250.000.

Bekijk alle woningen in Valeriusbuurt West

Gegevens van Dubbel benedenhuis (appartement)

Bouwjaar
1913
Geschatte waarde
€ 1.250.000
Oppervlakte
140 m2
Inhoud
711 m3
Aantal kamers
5 kamers
Slaapkamers
4
Soort bouw
Bestaande bouw
Eigendomssituatie
Volle eigendom
Tuin
Achtertuin
Achtertuin
50 m² (8m diep en 6,6m breed)

Voorzieningen in de buurt

Boodschappen0,1 km
Grote supermarkt0,2 km
Cafetaria0,1 km
Restaurant0,1 km
Huisarts0,3 km
Ziekenhuis2,2 km
Kinderdagverblijf0,2 km
BSO0,3 km
Alle voorzieningen in Valeriusbuurt West

Binnenkijken bij Lomanstraat 95 te Amsterdam

Meer meldingen in deze omgeving

Nieuw bedrijf
Februari 2026
Valeriusstraat 2242, 1075GK Amsterdam

Nieuw bedrijf
Februari 2026
Koninginneweg 2592, 1075CV Amsterdam

112 melding
Vrijdag 20-2-2026 om 09:10
Okeghemstraat, Amsterdam

Binnenkijken bij
Dinsdag 17-2-2026
Koninginneweg 1553, 1075CN Amsterdam

Binnenkijken bij
Vrijdag 13-2-2026
Lomanstraat 71E, 1075PW Amsterdam

Binnenkijken bij
Donderdag 12-2-2026
Okeghemstraat 361, 1075PP Amsterdam

112 melding
Maandag 9-2-2026 om 19:07
Lomanstraat, Amsterdam

Binnenkijken bij
Maandag 9-2-2026
Valeriusterras 6A, 1075BK Amsterdam

Direct een e-mail ontvangen bij nieuwe meldingen in deze regio?

Meld je dan GRATIS aan voor de Oozo Alert service voor Valeriusbuurt West

Instellen

Meer nieuws in Valeriusbuurt West

Weten hoe eenvoudig het is om af te vallen? Zonder pillen en smeersels en zonder je in het zweet te werken!
Kijk op eenvoudig-afvallen.nl

© 2012 - 2026 OOZO.nl - info@oozo.nl - Gegevens verwijderen? | Disclaimer | Privacy statement