Woning Amstelveenseweg 433 Amsterdam

Amstelveenseweg 43-3, 1075VT Amsterdam

Ontvang updates voor Willemsparkbuurt Noord

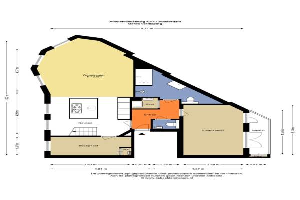
Het adres van deze woning uit 1911 is Amstelveenseweg 433 te Amsterdam. Het pand heeft een oppervlakte van 82m² en heeft 3 kamers kamers waarvan 2 slaapkamers. De geschatte waarde van deze woning is € 795.000.

Bekijk alle woningen in Willemsparkbuurt Noord

Gegevens van Bovenwoning (appartement)

Bouwjaar
1911
Geschatte waarde
€ 795.000
Oppervlakte
82 m2
Inhoud
278 m3
Aantal kamers
3 kamers
Slaapkamers
2
Badkamers
1 badkamer en 1 apart toilet
Soort bouw
Bestaande bouw
Eigendomssituatie
Volle eigendom
Ligging
Aan bosrand, aan drukke weg en in centrum

Voorzieningen in de buurt

Boodschappen0,2 km
Grote supermarkt0,3 km
Cafetaria0,2 km
Restaurant0,1 km
Huisarts0,3 km
Ziekenhuis2,4 km
Kinderdagverblijf0,2 km
BSO0,3 km
Alle voorzieningen in Willemsparkbuurt Noord

Binnenkijken bij Amstelveenseweg 433 te Amsterdam

Meer meldingen in deze omgeving

Faillissement
Dinsdag 20-1-2026
Oranje Nassaulaan 17, 1075AH AMSTERDAM

Binnenkijken bij
Donderdag 15-1-2026
Oranje Nassaulaan 83, 1075AM Amsterdam

112 melding
Vrijdag 9-1-2026 om 22:02
Oranje Nassaulaan, Amsterdam

Nieuw bedrijf
Januari 2026
Saxen-Weimarlaan 381, 1075CD Amsterdam

Nieuw bedrijf
Januari 2026
Oranje Nassaulaan 55, 1075AK Amsterdam

Nieuw bedrijf
Januari 2026
Emmaplein 2, 1075AW Amsterdam

Nieuw bedrijf
Januari 2026
Oranje Nassaulaan 60A, 1075AS Amsterdam

Nieuw bedrijf
Januari 2026
Prins Hendriklaan 49B, 1075BA Amsterdam

Direct een e-mail ontvangen bij nieuwe meldingen in deze regio?

Meld je dan GRATIS aan voor de Oozo Alert service voor Willemsparkbuurt Noord

Instellen

Meer nieuws in Willemsparkbuurt Noord

Weten hoe eenvoudig het is om af te vallen? Zonder pillen en smeersels en zonder je in het zweet te werken!
Kijk op eenvoudig-afvallen.nl

© 2012 - 2026 OOZO.nl - info@oozo.nl - Gegevens verwijderen? | Disclaimer | Privacy statement